Biznes
Tavsif
7x17m maydonga muljallangan kotedj loyihasi...
SOTUV UCHUN TAYYORLANDI
+998974209737 (watsap),(telegram). BahromIsmatov (Instagram)
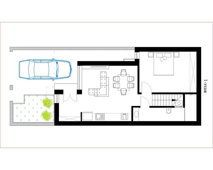
1-qavat: studiya, 1ta yotoqhona, 1ta san.uzel
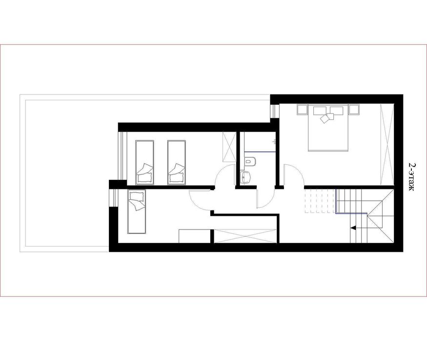
2-qavat: 3ta yotoqhona, 1ta san.uzel
SOTUV UCHUN TAYYORLANDI
+998974209737 (watsap),(telegram). BahromIsmatov (Instagram)
1-qavat: studiya, 1ta yotoqhona, 1ta san.uzel
2-qavat: 3ta yotoqhona, 1ta san.uzel
ID: 62021678
Sotuvchiga murojaat qilish
xxx xxx xxx
Joylashtirildi 02/12/2025
7x17m maydonga muljallangan kotedj loyihasi...
Foydalanuvchi
Joylashuv
