Biznes
Turarjoy turi: Yangi qurilgan uylar
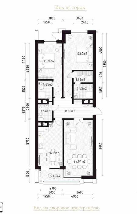
Xonalar soni: 4
Umumiy maydon: 110
Qavati: 7
Uy qavatliligi: 7
Qurilish turi: Gʻishtli
Rejasi: Alohida ajratilgan
Sanuzel: 2 va undan koʻp sanuzel
Mebelli: Yoʻq
Shiftining balandligi: 3.60
Taʼmiri: Qora suvoq
Vositachilik haqqi: Yo’q
Tavsif
жилой комплекс "Oq Saroy"
Расположение: Мирзо-Улугбекский район, ориентир - Циолковская, Олтинтепа, Паркентский
Ключевые характеристики:
Количество комнат: 3-4
Этаж: 7 из 7 полноценный этаж
Общая площадь: 110м²
Состояние: Коробка
Кадастр оформлен
Цена: 120,000$ Торг приветствуется
Расположение: Мирзо-Улугбекский район, ориентир - Циолковская, Олтинтепа, Паркентский
Ключевые характеристики:
Количество комнат: 3-4
Этаж: 7 из 7 полноценный этаж
Общая площадь: 110м²
Состояние: Коробка
Кадастр оформлен
Цена: 120,000$ Торг приветствуется
ID: 62645852
Sotuvchiga murojaat qilish
xxx xxx xxx

