Biznes
Turarjoy turi: Yangi qurilgan uylar
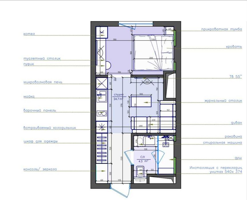
Xonalar soni: 1
Umumiy maydon: 31
Qavati: 9
Uy qavatliligi: 12
Qurilish turi: Monolitli
Rejasi: Aralash-alohida
Sanuzel: Aralash
Mebelli: Yoʻq
Vositachilik haqqi: Yo’q
Tavsif
В продаже квартира с хорошем расположением и развитой инфраструктурой. Предложим и другие интересные варианты!!
Звоните прямо сейчас: +998 97 767 72 92
Звоните прямо сейчас: +998 97 767 72 92
ID: 59838950
Sotuvchiga murojaat qilish
xxx xxx xxx
