Перейти к основному разделу
Чат
  • O'Z
  • Рус

Уведомления

Подать объявление
здание 

Юнусабад 14 квартал 
Первая линия
здание 

Юнусабад 14 квартал 
Первая линия
здание 

Юнусабад 14 квартал 
Первая линия
РекламироватьПоднять

Бизнес

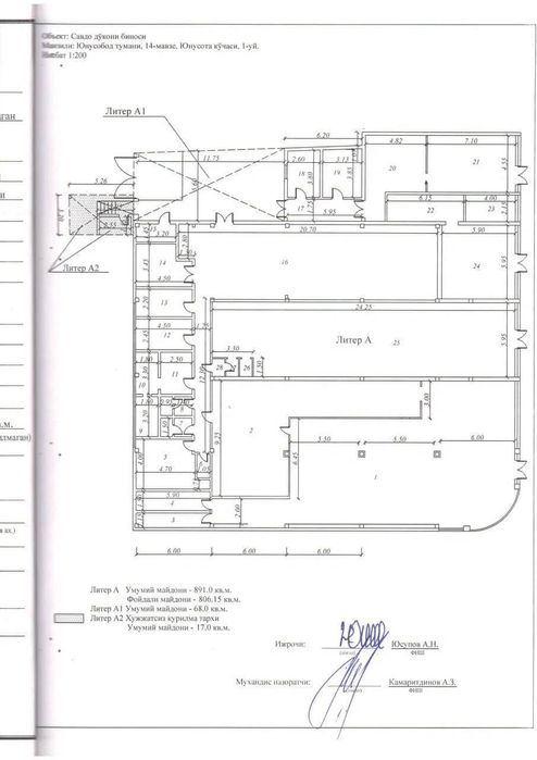
Тип недвижимости: Часть здания, Отдельно стоящие здания

Общая площадь: 1 000 м²

В помещении есть: Все коммуникации

Наличие парковки: Да

Комиссионные: Нет

Описание

Продается здание

Юнусабад 14 квартал
Первая линия
Вдоль дороги

1000 кв.м
Идеально подойдет под любой бизнес
: Магазины/бутики,, Салоны, Рестораны/кафе/бары,

Здание сдано в аренду надежным арендаторам (стабильный доход с первого дня).
.
Возможность увеличить этажность здания или построить новую современную новостройку.
документы и кадастр в полном порядке.

Все коммуникации, Мебель, Телефон, Решетки на окнах, Сигнализация, Кондиционер, Пожарная сигнализация, Видеонаблюдение

1.150.000$
ID: 61571599

Связаться с продавцом

Diamond

на OLX с май 2024 г.

Онлайн в 16:22

xxx xxx xxx

Опубликовано 30 сентября 2025 г.

здание Юнусабад 14 квартал Первая линия

1 150 000 у.е.

Пользователь

Местоположение

Location

Ташкент, Юнусабадский район

Ташкентская область

Бесплатное приложение для твоего телефона