Частное лицо
Тип недвижимости: Офисы, Отдельно стоящие здания
Общая площадь: 468 м²
Наличие парковки: Да
Комиссионные: Нет
Описание
Продаётся отдельно стоящее 2-этажное нежилое здание (бывший офис) в отличном состоянии — готово к использованию!
Алмазарский район, возле таможенного поста Чукурсой — удобный и стратегически выгодный район для ведения бизнеса.
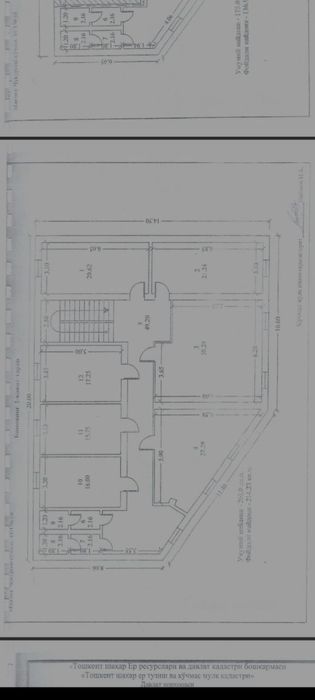
Общая площадь: 468 кв.м
Количество комнат: 11 просторных кабинетов
Парковка: Имеются парковочные места для автомобилей
Тип здания: Отдельно стоящее, капитальное строение, 2 этажа + подвал
Назначение: Нежилое, идеально подходит для офиса, представительства, частной клиники, учебного центра, логистики гостиница других видов коммерческой деятельности
Здание в отличном состоянии, полностью готово к эксплуатации
Все коммуникации подключены: электричество, водоснабжение, отопление
Удобная и функциональная планировка
Возможность размещения наружной рекламы
Отличный вариант для вашего бизнеса без лишних затрат на ремонт!
Алмазарский район, возле таможенного поста Чукурсой — удобный и стратегически выгодный район для ведения бизнеса.
Общая площадь: 468 кв.м
Количество комнат: 11 просторных кабинетов
Парковка: Имеются парковочные места для автомобилей
Тип здания: Отдельно стоящее, капитальное строение, 2 этажа + подвал
Назначение: Нежилое, идеально подходит для офиса, представительства, частной клиники, учебного центра, логистики гостиница других видов коммерческой деятельности
Здание в отличном состоянии, полностью готово к эксплуатации
Все коммуникации подключены: электричество, водоснабжение, отопление
Удобная и функциональная планировка
Возможность размещения наружной рекламы
Отличный вариант для вашего бизнеса без лишних затрат на ремонт!
ID: 60949986
Связаться с продавцом
xxx xxx xxx
Опубликовано 22 ноября 2025 г.
Здание 2х этажное Срочно!
246 000 у.е.
Местоположение
Ташкент, Алмазарский район
Ташкентская область