Перейти к основному разделу
Чат
  • O'Z
  • Рус

Уведомления

Подать объявление
Юнусобод 11 квартал нотурар ЦОКОЛНЫЙ ЭТАЖ 62-дом Мега планет
Юнусобод 11 квартал нотурар ЦОКОЛНЫЙ ЭТАЖ 62-дом Мега планет
Юнусобод 11 квартал нотурар ЦОКОЛНЫЙ ЭТАЖ 62-дом Мега планет
РекламироватьПоднять

Бизнес

Тип недвижимости: МАФ (малая архитектурная форма), Другое, Салоны, Офисы, Склады, Помещения свободного назначения

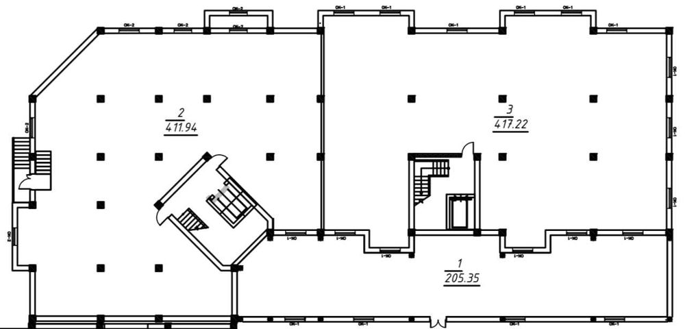
Общая площадь: 1 034.51 м²

Расположение: Бизнес центр

Высота потолков: 3.10

Ремонт: Требует ремонта

В помещении есть: Интернет, Цоколь, Подвал, Все коммуникации, Решетки на окнах, Видеонаблюдение, Круглосуточная охрана, Входная группа

Наличие парковки: Да

Комиссионные: Нет

Описание

Юнусобод туман 11 квартал Мега планетни орка тамони
62-домни Цоколний этажи
1. умумий майдони - 205,35 м2
2. умумий майдони - 411,94 м2
3. умумий майдони - 417,22 м2
Алохидан сотиб олса хам булади
1 м2 - 550 доллор келишиладиган жойи бор
ID: 61608882

Связаться с продавцом

Suxrob

на OLX с март 2020 г.

Онлайн 13 января 2026 г.

xxx xxx xxx

Опубликовано 16 января 2026 г.

Юнусобод 11 квартал нотурар ЦОКОЛНЫЙ ЭТАЖ 62-дом Мега планет

520 000 у.е.

Договорная

Пользователь

Местоположение

Location

Ташкент, Юнусабадский район

Ташкентская область

Бесплатное приложение для твоего телефона