Бизнес
Тип жилья: Новостройки
Количество комнат: 2
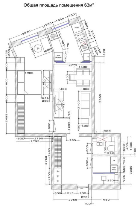
Общая площадь: 62
Этаж: 3
Этажность дома: 9
Тип строения: Монолитный
Планировка: Смежно-раздельная
Санузел: Раздельный
Меблирована: Нет
В квартире есть: Интернет, Телефон, Кабельное ТВ
Рядом есть: Больница, поликлиника, Школа, Детская площадка, Детский сад, Остановки, Парк, зелёная зона, Развлекательные заведения, Рестораны, кафе, Стоянка, Супермаркет, магазины
Ремонт: Черновая отделка
Комиссионные: Нет
Описание
2-комнатная квартира в ЖК Salamatina (Яккасарай) | 63 м² | Коробка
Срочная продажа! 2-комнатная квартира в состоянии "Коробка" (без ремонта) в новом кирпичном комплексе Salamatina. Квартира расположена на 1-й линии и находится на удобном 3-м этаже.
Жилой комплекс: Salamatina
Застройщик: Poytaxt city stroy
Расположение: 3-й этаж 9-этажного кирпичного дома. (1-я линия)
Общая площадь: 63 м²
Комнаты: 2 (Планировка: Смежно-Раздельная).
Ремонт: Коробка (Черновая отделка).
Санузел: Раздельный.
Тип строения: Кирпичный (Новостройка).
Документы: Кадастр имеется.
Ориентир: Монумент Братский, Мечеть, ул. Боги Бустон.
Цена: 66 010 у.е.
Контакт: +99877 2533300 (Равшан)
2 xonali kvartira Salamatina TJM da (Yakkasaroy) | 63 m² | Qora pardoz
Shoshilinch sotuv! Yangi gʻishtli Salamatina majmuasidagi "Korobka" (qora pardoz) holatidagi 2 xonali kvartira. Kvartira 1-liniyada joylashgan va qulay 3-qavatda.
Turar-joy majmuasi: Salamatina
Quruvchi: Poytaxt city stroy
Joylashuv: 9 qavatli gʻishtli uyning 3-qavati. (1-liniya)
Umumiy maydoni: 63 m²
Xonalar soni: 2 ta (Rejasi: Qoʻshma-Alohida).
Taʼmir: Korobka (Qora pardoz).
Sanuzel: Alohida.
Bino turi: Gʻishtli (Yangi qurilish).
Hujjatlar: Kadastr mavjud.
Moʻljal: Qardoshlik monumenti, Masjid, Bogʻi Buston koʻchasi.
Narxi: 66 010 AQSh dollari
Bogʻlanish: +99877 2533300 (Ravshan)
Срочная продажа! 2-комнатная квартира в состоянии "Коробка" (без ремонта) в новом кирпичном комплексе Salamatina. Квартира расположена на 1-й линии и находится на удобном 3-м этаже.
Жилой комплекс: Salamatina
Застройщик: Poytaxt city stroy
Расположение: 3-й этаж 9-этажного кирпичного дома. (1-я линия)
Общая площадь: 63 м²
Комнаты: 2 (Планировка: Смежно-Раздельная).
Ремонт: Коробка (Черновая отделка).
Санузел: Раздельный.
Тип строения: Кирпичный (Новостройка).
Документы: Кадастр имеется.
Ориентир: Монумент Братский, Мечеть, ул. Боги Бустон.
Цена: 66 010 у.е.
Контакт: +99877 2533300 (Равшан)
2 xonali kvartira Salamatina TJM da (Yakkasaroy) | 63 m² | Qora pardoz
Shoshilinch sotuv! Yangi gʻishtli Salamatina majmuasidagi "Korobka" (qora pardoz) holatidagi 2 xonali kvartira. Kvartira 1-liniyada joylashgan va qulay 3-qavatda.
Turar-joy majmuasi: Salamatina
Quruvchi: Poytaxt city stroy
Joylashuv: 9 qavatli gʻishtli uyning 3-qavati. (1-liniya)
Umumiy maydoni: 63 m²
Xonalar soni: 2 ta (Rejasi: Qoʻshma-Alohida).
Taʼmir: Korobka (Qora pardoz).
Sanuzel: Alohida.
Bino turi: Gʻishtli (Yangi qurilish).
Hujjatlar: Kadastr mavjud.
Moʻljal: Qardoshlik monumenti, Masjid, Bogʻi Buston koʻchasi.
Narxi: 66 010 AQSh dollari
Bogʻlanish: +99877 2533300 (Ravshan)
ID: 62077819
Связаться с продавцом
xxx xxx xxx

