Бизнес
Тип жилья: Новостройки
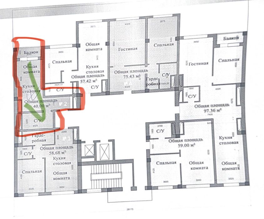
Количество комнат: 1
Общая площадь: 40
Этаж: 3
Этажность дома: 12
Тип строения: Кирпичный
Планировка: Смежная
Санузел: Совмещенный
Меблирована: Нет
Высота потолков: 3
Ремонт: Требует ремонта
Комиссионные: Нет
Описание
СРОЧНО. Горит
Глинка
Новостройка
ЖК Royal Towers
1 комнатная студия
Площадь - 40 м2
3й этаж
Вид на главную дорогу
Уже построенный блок из первых по сдаче
Цена за м2 по 1300 окончательно
В отделе продаж нету 1 комнатных. Большие по 18 млн за м2 продаются
(90)8115544
Дилмурод
Глинка
Новостройка
ЖК Royal Towers
1 комнатная студия
Площадь - 40 м2
3й этаж
Вид на главную дорогу
Уже построенный блок из первых по сдаче
Цена за м2 по 1300 окончательно
В отделе продаж нету 1 комнатных. Большие по 18 млн за м2 продаются
(90)8115544
Дилмурод
ID: 62214909
Связаться с продавцом
xxx xxx xxx
