Перейти к основному разделу
Чат
  • O'Z
  • Рус

Уведомления

Подать объявление
Участок 3 сот, 2 этажли коробка. Ориентир «Истирохат» кучаси.
Участок 3 сот, 2 этажли коробка. Ориентир «Истирохат» кучаси.
РекламироватьПоднять

Частное лицо

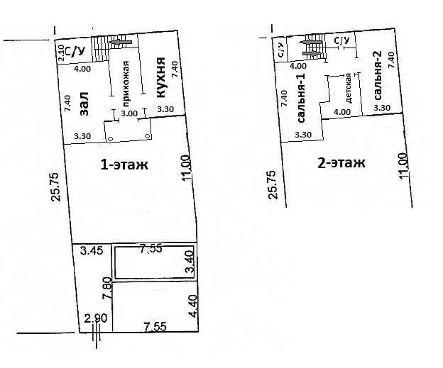
Количество комнат: 4

Общая площадь: 300 м²

Жилая площадь: 140 м²

Расположение: В городе

Этажность дома: 2

Высота потолков: 3.20

Меблирован: Нет

Площадь участка: 3

Состояние дома: Черновая отделка

Тип дома: Дом

Тип строения: Кирпичный

Вода: В доме, Центральное водоснабжение

Электричество: Есть

Отопление: На газе

Газ: Магистральный

Санузел: 2 санузла и более

В доме / на участке есть: Интернет, Телефон, Гараж, Канализация, Подвал, кладовка

Рядом есть: Больница, поликлиника, Детская площадка, Детский сад, Остановки, Парк, зелёная зона, Развлекательные заведения, Рестораны, кафе, Стоянка, Супермаркет, магазины, Школа

Комиссионные: Нет

Описание

Уч сотихли участка этаги томонга 2 кават уй солинган. 4 хона, кухня, 3 санузел. Котельная.
Канализация, сув, свет киритилган.
Ичкари томон хам сувокдан чиккан.
Отопление трубалари утказилган, канализация ва сув разводкаси килинган.
Участка кучадаги йулдан баланда жойлашган.
Фасад 10,5 метр, узунлиги 25,8 метр
ID: 45069637

Связаться с продавцом

G'ayrat Gafurov

на OLX с сентябрь 2017 г.

Онлайн 29 ноября 2025 г.

xxx xxx xxx

Опубликовано 29 ноября 2025 г.

Участок 3 сот, 2 этажли коробка. Ориентир «Истирохат» кучаси.

180 000 у.е.

Договорная

Пользователь

Местоположение

Location

Ташкент, Учтепинский район

Ташкентская область

Бесплатное приложение для твоего телефона