Частное лицо
Площадь: 23 соток
Назначение: Земля под строительство
Расположение: В городе, В пригороде, В сельской местности, Возле водоема, реки
Тип участка: Делимый
Коммуникации: Электричество, Вода, Газ, Интернет
Комиссионные: Нет
Описание
Продаётся дом 23 сотки в 2 км от поста "Рохат" по Ахангаранскому шоссе в пос.Балыкчи, Юкоричирчикский р-н (Новый Ташкентский р-н) продаётся дом, площадь участка 23 сотки.
Просторный участок с 2-мя домами в экологически чистом районе. Этот дом – находка для тех, кто ценит свежий воздух и покой.
Участок:
- Площадь: 23 сотки.
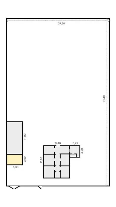
- Фасадная сторона 37 м., в глубину почти 61 м.
Основной дом:
- Материал: кирпич-сырец.
- Площадь: 90 кв.м.
- Этажность: 1 этаж.
- Планировка: 4 комнаты, кухня, веранда, санузел.
- Состояние: недавно обновлён фасад, внутри требует ремонта.
Гостевой/второй дом:
- Материал: кирпич.
- Состояние: коробка.
- Площадь: 30 кв.м.
- Этажность: 1 этаж.
- Планировка: 2 комнаты, санузел.
Коммуникации:
- Отопление: газовое.
- Водоснабжение: скважина + вводят централизованное.
- Электричество: есть.
- Канализация: яма.
- Интернет: UzOnline + стабильный сигнал UzMobile.
Преимущества:
- Экологичность: чистый воздух, тишина и большой сад с плодоносящими деревьями (абрикос, черешня, яблони, инжир, орех, фундук).
- Близость к городу: всего 3-4 минут на авто до Ташкента.
- Идеально для жизни или инвестиций.
Рассматриваем варианты частичной продажи или обмена на квартиру в Ташкенте
Контакты: 99 1118820 / 90 9106020
Просторный участок с 2-мя домами в экологически чистом районе. Этот дом – находка для тех, кто ценит свежий воздух и покой.
Участок:
- Площадь: 23 сотки.
- Фасадная сторона 37 м., в глубину почти 61 м.
Основной дом:
- Материал: кирпич-сырец.
- Площадь: 90 кв.м.
- Этажность: 1 этаж.
- Планировка: 4 комнаты, кухня, веранда, санузел.
- Состояние: недавно обновлён фасад, внутри требует ремонта.
Гостевой/второй дом:
- Материал: кирпич.
- Состояние: коробка.
- Площадь: 30 кв.м.
- Этажность: 1 этаж.
- Планировка: 2 комнаты, санузел.
Коммуникации:
- Отопление: газовое.
- Водоснабжение: скважина + вводят централизованное.
- Электричество: есть.
- Канализация: яма.
- Интернет: UzOnline + стабильный сигнал UzMobile.
Преимущества:
- Экологичность: чистый воздух, тишина и большой сад с плодоносящими деревьями (абрикос, черешня, яблони, инжир, орех, фундук).
- Близость к городу: всего 3-4 минут на авто до Ташкента.
- Идеально для жизни или инвестиций.
Рассматриваем варианты частичной продажи или обмена на квартиру в Ташкенте
Контакты: 99 1118820 / 90 9106020
ID: 63429902
Связаться с продавцом
xxx xxx xxx
Опубликовано 12 марта 2026 г.
Участок 23 сотки, Новый Ташкентский район
230 000 у.е.
Местоположение
Ташкент, Бектемирский район
Ташкентская область