Частное лицо
Количество комнат: 15
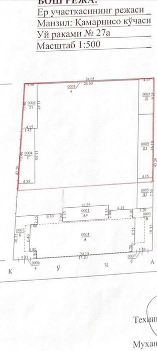
Общая площадь: 1 600 м²
Жилая площадь: 550 м²
Расположение: В городе
Этажность дома: 2
Меблирован: Нет
Площадь участка: 1 600
Тип дома: Дом
Тип строения: Кирпичный
Вода: Центральное водоснабжение
Отопление: На газе
Газ: Магистральный
Рядом есть: Больница, поликлиника, Школа, Детская площадка, Детский сад, Остановки, Парк, зелёная зона, Рестораны, кафе, Стоянка, Супермаркет, магазины
Комиссионные: Нет
Описание
Продаётся жилой дом под коммерческую недвижимость
* Отличная локация для бизнеса — вдоль центральной дороги
* Фасад — 35,2 метра
* Просторная территория — идеально подходит для организации парковки
Объект отлично подойдёт под: — Медицинский центр
— Частную школу или детский сад
— Ресторан, кафе
— Хостел или гостиницу
— Офисный центр и другие форматы коммерческого использования
---Рядом: 10 Медицинских учреждении
7 Университетов
- Удобный подъезд
- Высокая видимость с дороги
- Отличный потенциал для инвестиций и стабильного дохода
Цена: 890 000 у.е.
Подробности по телефону:
+998990007575
* Отличная локация для бизнеса — вдоль центральной дороги
* Фасад — 35,2 метра
* Просторная территория — идеально подходит для организации парковки
Объект отлично подойдёт под: — Медицинский центр
— Частную школу или детский сад
— Ресторан, кафе
— Хостел или гостиницу
— Офисный центр и другие форматы коммерческого использования
---Рядом: 10 Медицинских учреждении
7 Университетов
- Удобный подъезд
- Высокая видимость с дороги
- Отличный потенциал для инвестиций и стабильного дохода
Цена: 890 000 у.е.
Подробности по телефону:
+998990007575
ID: 63128041
Связаться с продавцом
xxx xxx xxx
Опубликовано 20 января 2026 г.
Участок 16 соток в доль дороги
890 000 у.е.
Местоположение
Ташкент, Алмазарский район
Ташкентская область