Бизнес
Тип жилья: Вторичный рынок
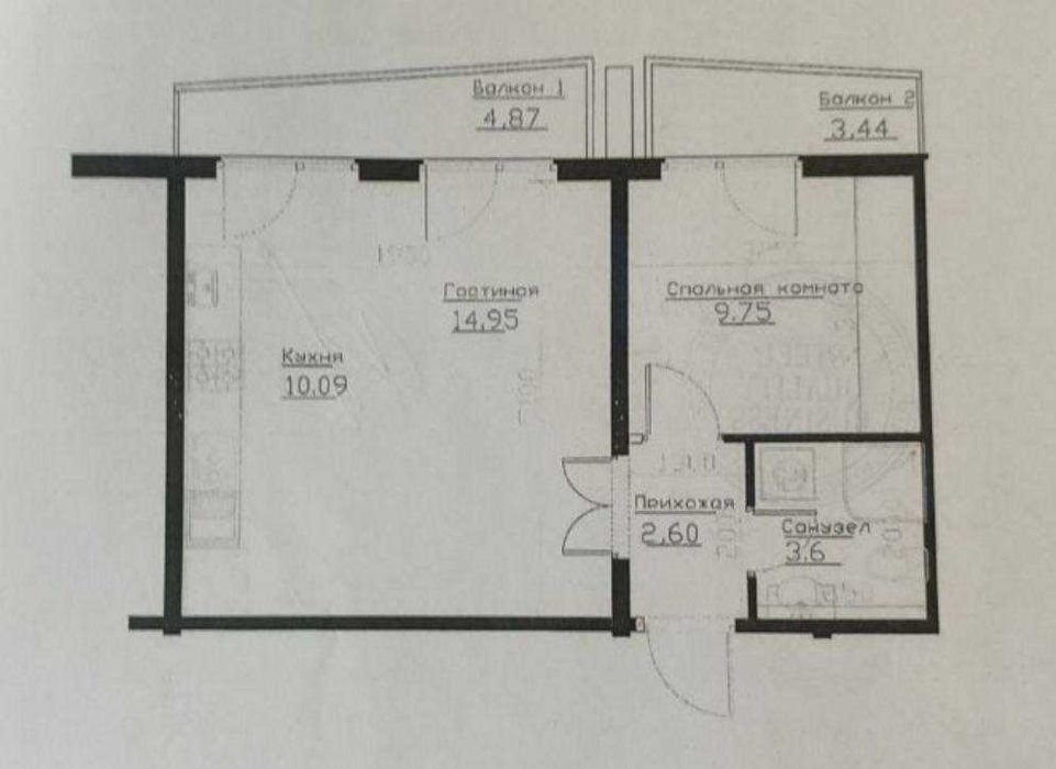
Количество комнат: 2
Общая площадь: 43
Этаж: 4
Этажность дома: 9
Тип строения: Кирпичный
Меблирована: Нет
Ремонт: Евроремонт
Комиссионные: Нет
Описание
‼️Продажа квартиры‼️
2/4/9
Новостройка
ЖК «Nur»
Застройщик "Namuna Development"
Район: Мирзо-Улугбек
Улица: Ц-2
Ориентир: Алайский рынок, Akay city
Количество комнат: 2
Этаж: 4
Этажность дома: 9
Общая площадь: 43м2
Состояние: Ремонт от застройщика
Есть кадастр
Вид на ЖК "Империал"
Цена: 89.999
2/4/9
Новостройка
ЖК «Nur»
Застройщик "Namuna Development"
Район: Мирзо-Улугбек
Улица: Ц-2
Ориентир: Алайский рынок, Akay city
Количество комнат: 2
Этаж: 4
Этажность дома: 9
Общая площадь: 43м2
Состояние: Ремонт от застройщика
Есть кадастр
Вид на ЖК "Империал"
Цена: 89.999
ID: 61984566
Связаться с продавцом
xxx xxx xxx
