Бизнес
Количество комнат: 3
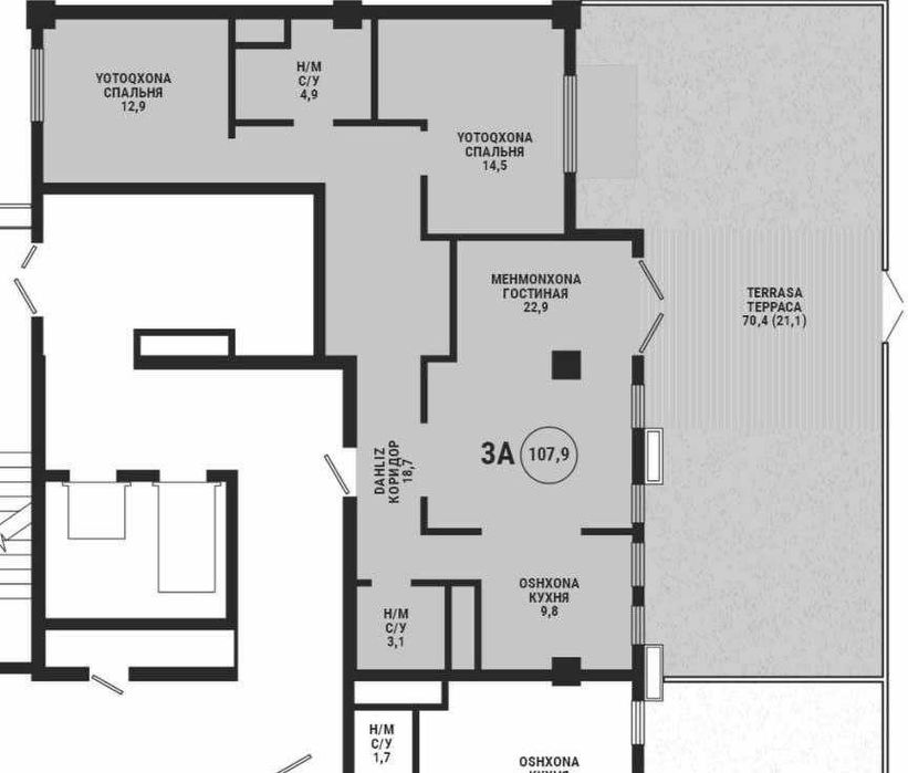
Общая площадь: 106 м²
Этаж: 1
Этажность дома: 12
Тип строения: Монолитный
Планировка: Раздельная
Меблирована: Нет
Санузел: 2 санузла и более
В квартире есть: Интернет, Телефон, Кабельное ТВ, Кухня, Балкон
Рядом есть: Больница, поликлиника, Школа, Детская площадка, Детский сад, Остановки, Парк, зелёная зона, Развлекательные заведения, Рестораны, кафе, Стоянка, Супермаркет, магазины
Ремонт: Черновая отделка
Комиссионные: Нет
Описание
Продается 3-комнатная квартира в жилом комплексе Koh-Ota
Застройщик: Bazis-T
Ориентир: мечеть Кох-Ота, ТЦ Ривьера
Кадастр: есть
Этаж: 1 из 12
Площадь: 106 м² + терраса
Планировка: раздельная
Санузлы: 2
Состояние: коробка
Тип строения: монолит
Дополнительная информация: квартира сквозная
Цена: 169 999 долларов. Стартовая цена
Контактный номер: +998 77 003 29 22
O‘zbek tilida
Koh-Ota turar joy majmuasida 3 xonali kvartira sotiladi
Quruvchi: Bazis-T
Mo‘ljal: Koh-Ota masjidi, Riviera savdo markazi
Kadastr: mavjud
Qavat: 1/12
Maydon: 106 m² + terrasasi bor
Reja: alohida xonalar
Sanuzel: 2 ta
Holati: quti (korobka)
Uy turi: monolit
Qo‘shimcha ma’lumot: kvartira ikki tomonga chiqadigan (skvoznoý)
Narxi: 169 999 AQSh dollari. Boshlang‘ich narx
Aloqa uchun telefon: +998 77 003 29 22
Застройщик: Bazis-T
Ориентир: мечеть Кох-Ота, ТЦ Ривьера
Кадастр: есть
Этаж: 1 из 12
Площадь: 106 м² + терраса
Планировка: раздельная
Санузлы: 2
Состояние: коробка
Тип строения: монолит
Дополнительная информация: квартира сквозная
Цена: 169 999 долларов. Стартовая цена
Контактный номер: +998 77 003 29 22
O‘zbek tilida
Koh-Ota turar joy majmuasida 3 xonali kvartira sotiladi
Quruvchi: Bazis-T
Mo‘ljal: Koh-Ota masjidi, Riviera savdo markazi
Kadastr: mavjud
Qavat: 1/12
Maydon: 106 m² + terrasasi bor
Reja: alohida xonalar
Sanuzel: 2 ta
Holati: quti (korobka)
Uy turi: monolit
Qo‘shimcha ma’lumot: kvartira ikki tomonga chiqadigan (skvoznoý)
Narxi: 169 999 AQSh dollari. Boshlang‘ich narx
Aloqa uchun telefon: +998 77 003 29 22
ID: 61333424
Связаться с продавцом
xxx xxx xxx

