Бизнес
Тип жилья: Новостройки
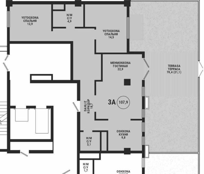
Количество комнат: 3
Общая площадь: 106
Этаж: 1
Этажность дома: 12
Тип строения: Монолитный
Планировка: Раздельная
Санузел: 2 санузла и более
Меблирована: Нет
В квартире есть: Интернет, Телефон, Кабельное ТВ, Балкон
Рядом есть: Больница, поликлиника, Детская площадка, Детский сад, Остановки, Парк, зелёная зона, Развлекательные заведения, Рестораны, кафе, Стоянка, Супермаркет, магазины, Школа
Ремонт: Черновая отделка
Комиссионные: Нет
Описание
Koh-Ota
Застройщик: Bazis-T
Кадастр: есть
Комнат: 3
Этаж: 1 из 12
Площадь: 106 м² + терраса
Состояние: коробка
Планировка: раздельная
с/у: 2 санузла
Тип строения: монолит
Доп: сквозная квартира
Ориентир: мечеть Koh Ota, ТЦ Riviera
Продаётся просторная 3-комнатная квартира в премиум-комплексе Koh-Ota от застройщика Bazis-T. Без ремонта, с возможностью реализовать собственный дизайн. Удобная планировка, 2 санузла, большая терраса. Первый этаж — отличный вариант для семьи. Центр города, рядом Riviera, школы, магазины, транспорт.
Цена: 169 999 у.е. старт
Номер: +998 77 003 29 22
#Shayxontohur #ta’mirsiz #Sebzar #Premium #Markaz #3xona
Koh-Ota
Quruvchi: Bazis-T
Kadastr: bor
Xonalar: 3
Qavat: 1 / 12
Maydon: 106 m² + terassa
Holati: quti
Rejalashtirish: alohida
Sanuzel: 2 ta
Qurilish turi: monolit
Qo‘shimcha: o‘tkazma kvartira
Mo‘ljal: Koh Ota masjidi, Riviera savdo markazi
Koh-Ota Premium turar joy majmuasida 3 xonali, katta terassali kvartira sotiladi. Kvartira ta’mirsiz, dizaynni o‘zingizga moslab qilishingiz mumkin. Birinchi qavat — oilalar uchun qulay variant. Markaziy hudud, Riviera, maktab va do‘konlar yaqin.
Narx: 169 999 $ start
Telefon: +998 77 003 29 22
Застройщик: Bazis-T
Кадастр: есть
Комнат: 3
Этаж: 1 из 12
Площадь: 106 м² + терраса
Состояние: коробка
Планировка: раздельная
с/у: 2 санузла
Тип строения: монолит
Доп: сквозная квартира
Ориентир: мечеть Koh Ota, ТЦ Riviera
Продаётся просторная 3-комнатная квартира в премиум-комплексе Koh-Ota от застройщика Bazis-T. Без ремонта, с возможностью реализовать собственный дизайн. Удобная планировка, 2 санузла, большая терраса. Первый этаж — отличный вариант для семьи. Центр города, рядом Riviera, школы, магазины, транспорт.
Цена: 169 999 у.е. старт
Номер: +998 77 003 29 22
#Shayxontohur #ta’mirsiz #Sebzar #Premium #Markaz #3xona
Koh-Ota
Quruvchi: Bazis-T
Kadastr: bor
Xonalar: 3
Qavat: 1 / 12
Maydon: 106 m² + terassa
Holati: quti
Rejalashtirish: alohida
Sanuzel: 2 ta
Qurilish turi: monolit
Qo‘shimcha: o‘tkazma kvartira
Mo‘ljal: Koh Ota masjidi, Riviera savdo markazi
Koh-Ota Premium turar joy majmuasida 3 xonali, katta terassali kvartira sotiladi. Kvartira ta’mirsiz, dizaynni o‘zingizga moslab qilishingiz mumkin. Birinchi qavat — oilalar uchun qulay variant. Markaziy hudud, Riviera, maktab va do‘konlar yaqin.
Narx: 169 999 $ start
Telefon: +998 77 003 29 22
ID: 62187391
Связаться с продавцом
xxx xxx xxx

