Частное лицо
Тип недвижимости: Магазины/бутики, Офисы, Отдельно стоящие здания, Помещения свободного назначения
Общая площадь: 570 м²
Полезная площадь: 540
Расположение: Отдельно стоящие здания
Участок: 300
Этаж: 2
Этажность дома: 2
Высота потолков: 4
Ремонт: Авторский проект
В помещении есть: Интернет, Цоколь, Подвал, Все коммуникации, Решетки на окнах, Сигнализация, Пожарная сигнализация, Видеонаблюдение, Входная группа
Наличие парковки: Да
Комиссионные: Нет
Описание
Шаҳрисабз шаҳри марказида, шифохона яқинида жойлашган янги қурилган 2 қаватли бино узоқ муддатга ижарага берилади. Объект қулай бурчак жойлашувига эга ва алохида автотураргоҳ мавжуд.
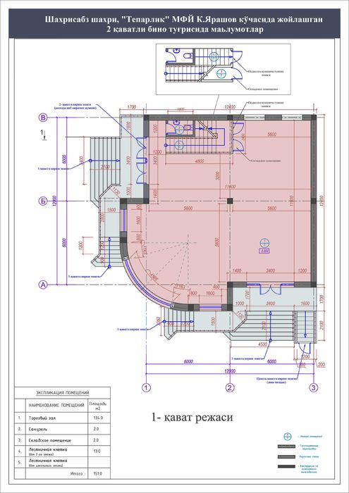
Бинонинг умумий майдони- 570 м².
Қаватлар сони: 2 қават + цоколь қаватига эга.
Ҳар бир қават майдони тахминан 180-190 м².
Объектнинг асосий афзаллиги — бинодан тўлиқ ҳолатда ҳам, қаватлар бўйича алоҳида ҳам фойдаланиш мумкин. Чунки алоҳида кириш-чиқишлар ва коммуникацияга эга.
Қуйидаги фаолият турлари учун жуда мос:
- Аёллар/ болалар/ умумий тиббиёт маркази ёки клиника;
- Диагностика маркази;
- Лаборатория;
- Стоматология;
- Дорихона;
- Ўқув маркази;
- Офис;
- Шоурум ёки тижорат фаолияти кабилар.
Объект афзалликлари:
- Шаҳар марказида жойлашган;
- Шахрисабз марказий шифохонасига яқин жойлашув;
- Бино бурчакда жойлашган ва алохида майдон ва автотураргохга эга
- 2 қават ва цоколь қаватига кириш-чиқиш алоҳида қилиш имкони борлиги;
- Барча коммуникацияларга эга эканлиги;
- Қаватлар баландлиги- цокол қават 3.0 м, 1-2-қаватлар 4.0 метр;
- Цокол қавати оддий подвал эмас, тўлақонли ойналар (табиий ёруғлик ва хаво алмашиши учун) ва 2 та санузель, алохида кириш-чиқишга эга;
- Бино замонавий фасад кўринишга эга ва хар қанақанги фаолият учун жуда қулай.
Жиддий қизиққан ижарачилар билан ижара шартлари ва қўшимча маълумотлар муҳокама қилинади.
Телефон: +998901100003 ; +998992664705
Бинонинг умумий майдони- 570 м².
Қаватлар сони: 2 қават + цоколь қаватига эга.
Ҳар бир қават майдони тахминан 180-190 м².
Объектнинг асосий афзаллиги — бинодан тўлиқ ҳолатда ҳам, қаватлар бўйича алоҳида ҳам фойдаланиш мумкин. Чунки алоҳида кириш-чиқишлар ва коммуникацияга эга.
Қуйидаги фаолият турлари учун жуда мос:
- Аёллар/ болалар/ умумий тиббиёт маркази ёки клиника;
- Диагностика маркази;
- Лаборатория;
- Стоматология;
- Дорихона;
- Ўқув маркази;
- Офис;
- Шоурум ёки тижорат фаолияти кабилар.
Объект афзалликлари:
- Шаҳар марказида жойлашган;
- Шахрисабз марказий шифохонасига яқин жойлашув;
- Бино бурчакда жойлашган ва алохида майдон ва автотураргохга эга
- 2 қават ва цоколь қаватига кириш-чиқиш алоҳида қилиш имкони борлиги;
- Барча коммуникацияларга эга эканлиги;
- Қаватлар баландлиги- цокол қават 3.0 м, 1-2-қаватлар 4.0 метр;
- Цокол қавати оддий подвал эмас, тўлақонли ойналар (табиий ёруғлик ва хаво алмашиши учун) ва 2 та санузель, алохида кириш-чиқишга эга;
- Бино замонавий фасад кўринишга эга ва хар қанақанги фаолият учун жуда қулай.
Жиддий қизиққан ижарачилар билан ижара шартлари ва қўшимча маълумотлар муҳокама қилинади.
Телефон: +998901100003 ; +998992664705
ID: 64051291
Связаться с продавцом
xxx xxx xxx
Опубликовано 28 марта 2026 г.
Шаҳрисабз шифохонаси ёнида жойлашган 2 қаватли бино ижарага берилади
2 000 у.е.
Договорная
Местоположение
Шахрисабз
Кашкадарьинская область