Бизнес
Тип недвижимости: Склады, Помещения промышленного назначения
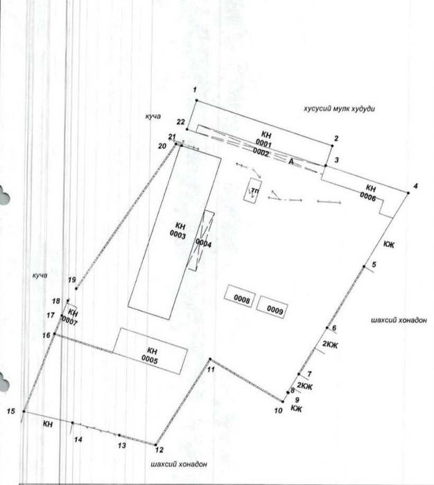
Общая площадь: 2 200 м²
Расположение: Промзона
Участок: 1 300
Этаж: 1
Этажность дома: 1
Ремонт: Авторский проект
В помещении есть: Все коммуникации, Круглосуточная охрана
Наличие парковки: Да
Комиссионные: Нет
Описание
Продам отличную базу на 1.3 Га земли на территории которой находятся :
- холодильники с общей площадью 1354 кв.м..
- ангар с общей площадью 199кв.м..
- склады с общей площадью 608кв.м..
Все коммуникации в наличии.Канализации нет.
Ориентир : Сергели ,Хонобод , от дороги 100м.
Men 1,3 sotih yerdagi ajoyib bazani sotaman, unga quyidagilar kiradi:
- Umumiy maydoni 1354 kvadrat metr bo'lgan muzlatgichli omborlar.
- Umumiy maydoni 199 kvadrat metr bo'lgan angar.
- Umumiy maydoni 608 kvadrat metr bo'lgan omborlar.
Barcha kommunal xizmatlar mavjud. Kanalizatsiya yo'q.
Diqqatga sazovor joylari: Sergeli, Xonobod, yo'ldan 100 metr.
- холодильники с общей площадью 1354 кв.м..
- ангар с общей площадью 199кв.м..
- склады с общей площадью 608кв.м..
Все коммуникации в наличии.Канализации нет.
Ориентир : Сергели ,Хонобод , от дороги 100м.
Men 1,3 sotih yerdagi ajoyib bazani sotaman, unga quyidagilar kiradi:
- Umumiy maydoni 1354 kvadrat metr bo'lgan muzlatgichli omborlar.
- Umumiy maydoni 199 kvadrat metr bo'lgan angar.
- Umumiy maydoni 608 kvadrat metr bo'lgan omborlar.
Barcha kommunal xizmatlar mavjud. Kanalizatsiya yo'q.
Diqqatga sazovor joylari: Sergeli, Xonobod, yo'ldan 100 metr.
ID: 61657766
Связаться с продавцом
xxx xxx xxx
Опубликовано 20 октября 2025 г.
Сергели.Хонобод.Продам 1.3 Га..Склады,холодильники,ангар.
2 600 000 у.е.
Договорная
Местоположение
Ташкент, Сергелийский район
Ташкентская область