Бизнес
Тип недвижимости: Магазины/бутики, Салоны, Офисы
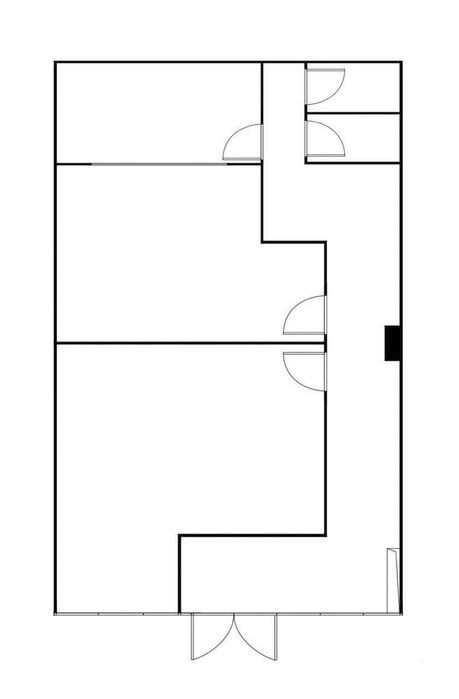
Общая площадь: 88 м²
Наличие парковки: Да
Комиссионные: Да
Описание
Сдаётся просторное и удобное помещение в Яшнабадском районе!
Ориентир: Паркентский, Тапоич
Помещение площадью 88 м², расположено на 2 этаже. Выполнен современный евроремонт, есть санузел — идеально подойдёт для любого вида коммерческой деятельности.
Формат использования:
— офис для команды
— салон красоты или барбершоп
— учебный центр
— кабинет предоставления услуг
— коворкинг или тихое производство
Удобная локация, хорошая транспортная доступность и комфортные условия делают это помещение отличным вариантом для вашего бизнеса.
Цена: 800
Телефон для связи: +998.90.950.75.55
#арендаТашкент #Яшнабадскийрайон #коммерческаяНедвижимость #арендаПомещений #офисВТашкенте #сдамПомещение #евроремонт #аренда88м2 #бизнесТашкент
Ориентир: Паркентский, Тапоич
Помещение площадью 88 м², расположено на 2 этаже. Выполнен современный евроремонт, есть санузел — идеально подойдёт для любого вида коммерческой деятельности.
Формат использования:
— офис для команды
— салон красоты или барбершоп
— учебный центр
— кабинет предоставления услуг
— коворкинг или тихое производство
Удобная локация, хорошая транспортная доступность и комфортные условия делают это помещение отличным вариантом для вашего бизнеса.
Цена: 800
Телефон для связи: +998.90.950.75.55
#арендаТашкент #Яшнабадскийрайон #коммерческаяНедвижимость #арендаПомещений #офисВТашкенте #сдамПомещение #евроремонт #аренда88м2 #бизнесТашкент
ID: 62306106
Связаться с продавцом
xxx xxx xxx
Опубликовано 25 ноября 2025 г.
Сдаю 88 m² офис в аренду. Паркентский. Тапоич. Авиатор.
800 у.е.
Договорная
Местоположение
Ташкент, Яшнабадский район
Ташкентская область