Бизнес
Тип недвижимости: Другое, Офисы, Отдельно стоящие здания, Помещения свободного назначения
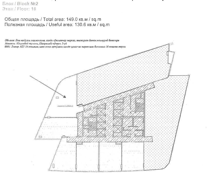
Общая площадь: 130 м²
Полезная площадь: 130
Расположение: Отдельно стоящие здания
Этаж: 14
Этажность дома: 20
Высота потолков: 3.70
Ремонт: Требует ремонта
В помещении есть: Интернет, Все коммуникации, Мебель, Сигнализация, Кондиционер, Пожарная сигнализация, Видеонаблюдение, Входная группа
Наличие парковки: Да
Комиссионные: Да
Описание
АРЕНДА ОФИСА ПРЕМИУМ-КЛАССА В TRILLIANT TOWER 2
Статусный адрес: г. Ташкент, Юнусабадский р-н Ц2, Алайский.
Бизнес-центр Класса "А" с готовой дизайнерской отделкой.
Основные параметры:
Площадь: Выбор от 100 м² до 1000 м².
Цена аренды: 36 у.е. за 1 м².
Высота потолков: 3.5 метра (премиальный стандарт).
Доступ: 24/7 для вашей полной гибкости.
Инфраструктура и Комфорт:
Лифты: 6 скоростных пассажирских и 2 грузовых лифта.
Паркинг: Вместительный паркинг на 324 машиноместа и зарядные станции для электрокаров.
Дополнительные расходы (отдельно от аренды):
Эксплуатационные расходы: 2 у.е. за 1 м².
НДС
Коммунальные услуги (электричество, вода).
Мебель.
TRILLIANT TOWER 2 — лучшее решение для вашего бизнеса!
Звоните для организации просмотра.
Статусный адрес: г. Ташкент, Юнусабадский р-н Ц2, Алайский.
Бизнес-центр Класса "А" с готовой дизайнерской отделкой.
Основные параметры:
Площадь: Выбор от 100 м² до 1000 м².
Цена аренды: 36 у.е. за 1 м².
Высота потолков: 3.5 метра (премиальный стандарт).
Доступ: 24/7 для вашей полной гибкости.
Инфраструктура и Комфорт:
Лифты: 6 скоростных пассажирских и 2 грузовых лифта.
Паркинг: Вместительный паркинг на 324 машиноместа и зарядные станции для электрокаров.
Дополнительные расходы (отдельно от аренды):
Эксплуатационные расходы: 2 у.е. за 1 м².
НДС
Коммунальные услуги (электричество, вода).
Мебель.
TRILLIANT TOWER 2 — лучшее решение для вашего бизнеса!
Звоните для организации просмотра.
ID: 59290425
Связаться с продавцом
xxx xxx xxx
