Перейти к основному разделу
Чат
  • O'Z
  • Рус

Уведомления

Подать объявление
Сдаётся помещения под офис в бизнес центре
Сдаётся помещения под офис в бизнес центре
Сдаётся помещения под офис в бизнес центре
Сдаётся помещения под офис в бизнес центре
Сдаётся помещения под офис в бизнес центре
Сдаётся помещения под офис в бизнес центре
РекламироватьПоднять

Бизнес

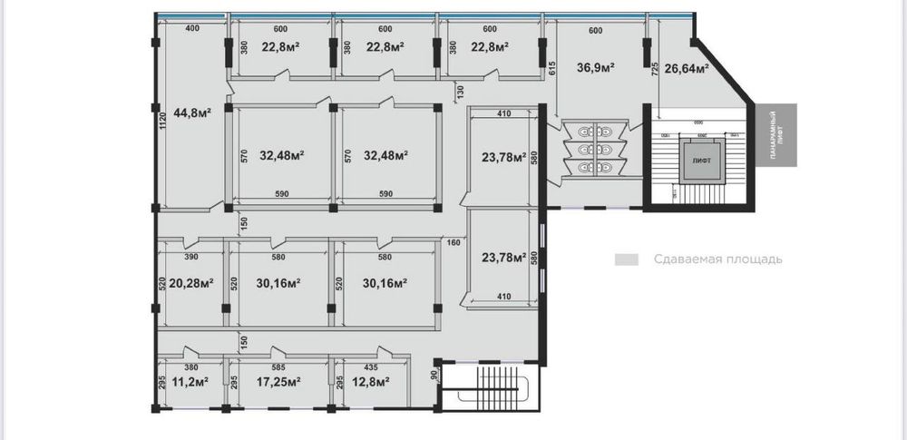
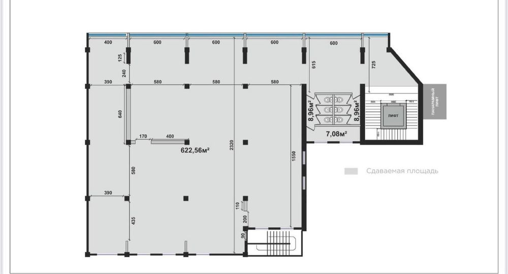
Тип недвижимости: Магазины/бутики, Салоны, Рестораны/кафе/бары, Офисы

Общая площадь: 10 000 м²

Этажность дома: 11

В помещении есть: Сигнализация, Пожарная сигнализация, Видеонаблюдение

Наличие парковки: Да

Комиссионные: Нет

Описание

Предлагаются современные офисные помещения в новом бизнес-центре. Возможна аренда с ремонтом или без ремонта — на ваш выбор.

Преимущества:
• Развитая инфраструктура района
• Удобная парковка — мест хватает всем
• Метро в шаговой доступности
• Планировки: open space или кабинеты

Стоимость аренды:
• Без ремонта — 250000 сум /м²
• С ремонтом — 312500 сум /м²
ID: 62220067

Связаться с продавцом

Shaxzod

на OLX с март 2025 г.

Онлайн 11 января 2026 г.

xxx xxx xxx

Опубликовано 08 января 2026 г.

Сдаётся помещения под офис в бизнес центре

312 500 сум

Пользователь

Местоположение

Location

Мирабад

Ташкентская область

Бесплатное приложение для твоего телефона