Перейти к основному разделу
Чат
  • O'Z
  • Рус

Уведомления

Подать объявление
Сдаётся офис в бизнес центре
Сдаётся офис в бизнес центре
Сдаётся офис в бизнес центре
Сдаётся офис в бизнес центре
Сдаётся офис в бизнес центре
Сдаётся офис в бизнес центре
Сдаётся офис в бизнес центре
Сдаётся офис в бизнес центре
РекламироватьПоднять

Бизнес

Тип недвижимости: Магазины/бутики, Салоны, Рестораны/кафе/бары, Офисы, Отдельно стоящие здания

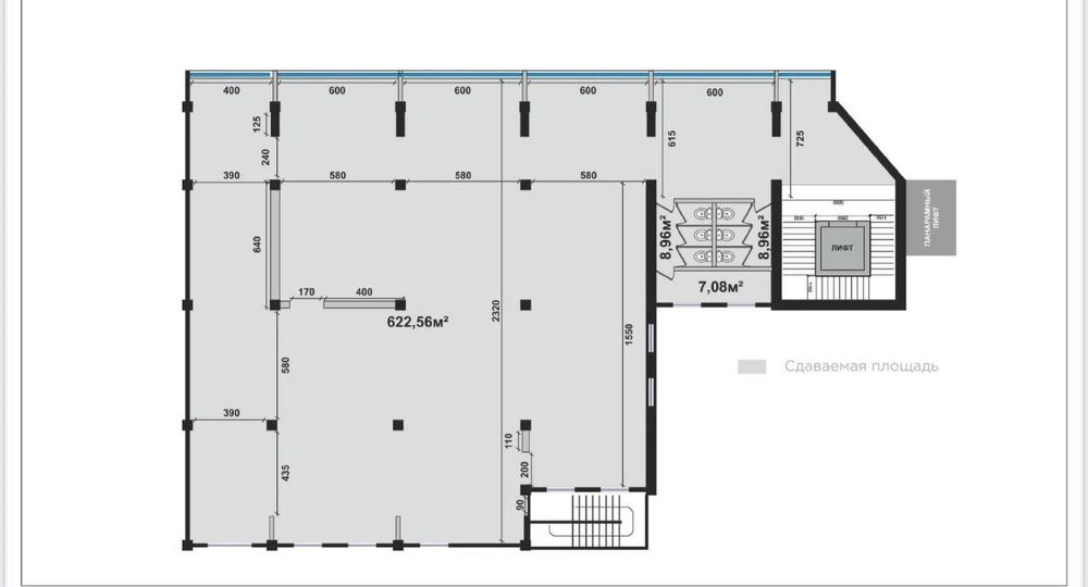
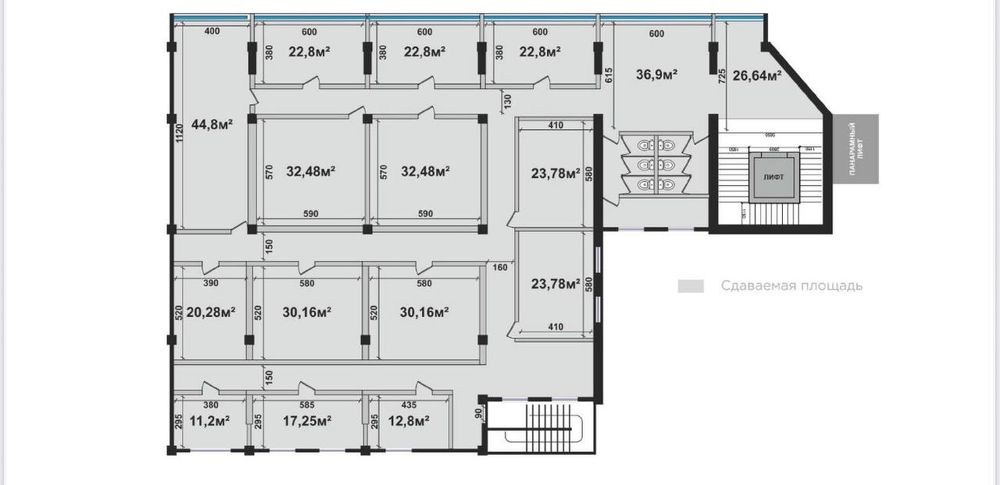
Общая площадь: 10 000 м²

Наличие парковки: Да

Комиссионные: Нет

Описание

Предлагаются современные офисные помещения в новом бизнес-центре. Возможна аренда с ремонтом или без ремонта — на ваш выбор.

Преимущества:
• Развитая инфраструктура района
• Удобная парковка — мест хватает всем
• Метро в шаговой доступности
• Планировки: open space или кабинеты

Статус этажей:
1–3 этажи уже сданы, доступны помещения с 4 этажа и выше.

Стоимость аренды:
• Без ремонта — 20 у.е./м²
• С ремонтом — 25 у.е./м²

Номер для связи : 998953133/981424545
ID: 61966700

Связаться с продавцом

Shaxzod

на OLX с март 2025 г.

Онлайн вчера в 09:17

xxx xxx xxx

Опубликовано 30 октября 2025 г.

Сдаётся офис в бизнес центре

25 у.е.

Пользователь

Местоположение

Location

Мирабад

Ташкентская область

Бесплатное приложение для твоего телефона