Бизнес
Количество комнат: 1
Общая площадь: 320 м²
Жилая площадь: 50 м²
Расположение: В городе
Этажность дома: 1
Меблирован: Нет
Площадь участка: 320
Состояние дома: Требует ремонта
Тип дома: Дом
Тип строения: Кирпичный
Вода: В доме
Отопление: На газе
Газ: Магистральный
Санузел: Раздельный
В доме / на участке есть: Огород, Канализация
Рядом есть: Развлекательные заведения, Остановки, Школа, Супермаркет, магазины, Рестораны, кафе, Детская площадка, Парк, зелёная зона, Детский сад, Больница, поликлиника, Стоянка
Комиссионные: Нет
Описание
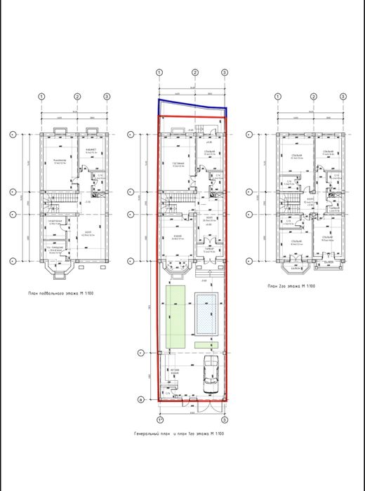
Продажа участка под строительство
Локация: центр Луначарского
Улица Шуртеппа, ориентир сзади ЭСБ
Площадь участка: 3.2 сотки
Фасад: 9 метров
Глубина: 40 метров
Подходит под строительство дома.
Есть готовый проект.
Цена: 90 000$ за сотку
Все вопросы по номеру
974036522
Локация: центр Луначарского
Улица Шуртеппа, ориентир сзади ЭСБ
Площадь участка: 3.2 сотки
Фасад: 9 метров
Глубина: 40 метров
Подходит под строительство дома.
Есть готовый проект.
Цена: 90 000$ за сотку
Все вопросы по номеру
974036522
ID: 63873315
Связаться с продавцом
xxx xxx xxx
