Бизнес
Тип недвижимости: Офисы
Общая площадь: 680 м²
Полезная площадь: 680
Расположение: Бизнес центр
Этаж: 5
Ремонт: Черновая отделка
В помещении есть: Подвал, Все коммуникации, Круглосуточная охрана, Входная группа
Наличие парковки: Да
Комиссионные: Нет
Описание
Продаются офисы в бизнес центре — современные офисные площади под ваш бизнес
Ориентир: Буз базар
• 4 этаж — 680 м² open space (без ремонта)
• 5 этаж — 580 м² + 100 м² терраса (без ремонта)
Февраль сдача объекта
Инженерия и комфорт:
• VRF-кондиционирование и вентиляция
• Отопление и ГВС на конденсационных котлах
• Видеонаблюдение и система пожарной безопасности
• 2 пассажирских лифта Sigma
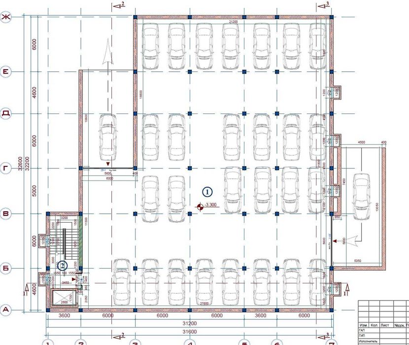
• Подземный паркинг на 28 мест, двор и благоустроенная территория
Фасад и архитектура:
• Панорамное остекление, высококачественные фасадные материалы
• Дизайнерский вход и лестничные площадки
• Эксплуатируемая терраса на 5 этаже
• Open space позволяет сделать планировку под любой бизнес
Цена: 1 550 $/м² с НДС
Преимущества:
• Современное здание с новой инженерией
• Высокие потолки и светлые помещения
• Удобная транспортная доступность
• Подземный и наземный паркинг
• Возможность адаптации пространства под ваши задачи
Идеально под крупный офис, IT-компанию, финансовые структуры, образовательный центр или шоурум.
Ориентир: Буз базар
• 4 этаж — 680 м² open space (без ремонта)
• 5 этаж — 580 м² + 100 м² терраса (без ремонта)
Февраль сдача объекта
Инженерия и комфорт:
• VRF-кондиционирование и вентиляция
• Отопление и ГВС на конденсационных котлах
• Видеонаблюдение и система пожарной безопасности
• 2 пассажирских лифта Sigma
• Подземный паркинг на 28 мест, двор и благоустроенная территория
Фасад и архитектура:
• Панорамное остекление, высококачественные фасадные материалы
• Дизайнерский вход и лестничные площадки
• Эксплуатируемая терраса на 5 этаже
• Open space позволяет сделать планировку под любой бизнес
Цена: 1 550 $/м² с НДС
Преимущества:
• Современное здание с новой инженерией
• Высокие потолки и светлые помещения
• Удобная транспортная доступность
• Подземный и наземный паркинг
• Возможность адаптации пространства под ваши задачи
Идеально под крупный офис, IT-компанию, финансовые структуры, образовательный центр или шоурум.
ID: 62699151
Связаться с продавцом
xxx xxx xxx

