Бизнес
Тип недвижимости: Офисы, Часть здания, Помещения свободного назначения
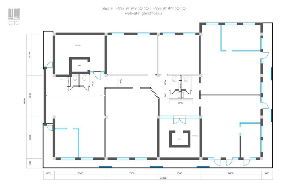
Общая площадь: 599 м²
Полезная площадь: 599
Расположение: Бизнес центр
Этаж: 4
Этажность дома: 8
Высота потолков: 3.50
Ремонт: Авторский проект
В помещении есть: Кондиционер, Пожарная сигнализация, Интернет, Круглосуточная охрана, Все коммуникации, Входная группа, Сигнализация
Наличие парковки: Да
Комиссионные: Нет
Описание
Продажа 4 этажа в БЦ Status — 599 кв.м., премиальная отделка
Предлагается к продаже полностью готовый к эксплуатации 4 этаж в БЦ Status общей площадью 599 кв.м.
Преимущества объекта:
- Дизайнерская современная отделка
- Полностью смонтированные и работающие системы вентиляции и кондиционирования
- Тёплый пол
- Установленная сантехника
- Готовность к заезду без дополнительных вложений
Помещение идеально подойдёт для вашего бизнеса
Все инженерные системы введены в эксплуатацию. Пространство функционально спланировано и готово к работе.
Подробности и условия продажи предоставим по запросу.
Стоимость указана без учета налогов. Комиссий не взимаем - предложение от собственника.
Предлагается к продаже полностью готовый к эксплуатации 4 этаж в БЦ Status общей площадью 599 кв.м.
Преимущества объекта:
- Дизайнерская современная отделка
- Полностью смонтированные и работающие системы вентиляции и кондиционирования
- Тёплый пол
- Установленная сантехника
- Готовность к заезду без дополнительных вложений
Помещение идеально подойдёт для вашего бизнеса
Все инженерные системы введены в эксплуатацию. Пространство функционально спланировано и готово к работе.
Подробности и условия продажи предоставим по запросу.
Стоимость указана без учета налогов. Комиссий не взимаем - предложение от собственника.
ID: 63701658
Связаться с продавцом
xxx xxx xxx

