Перейти к основному разделу
Чат
  • O'Z
  • Рус

Уведомления

Подать объявление
Продажа|Бизнес центр|Любая площадь|метро машинасозлар|Офис|office
Продажа|Бизнес центр|Любая площадь|метро машинасозлар|Офис|office
Продажа|Бизнес центр|Любая площадь|метро машинасозлар|Офис|office
Продажа|Бизнес центр|Любая площадь|метро машинасозлар|Офис|office
Продажа|Бизнес центр|Любая площадь|метро машинасозлар|Офис|office
РекламироватьПоднять

Бизнес

Тип недвижимости: МАФ (малая архитектурная форма), Салоны, Магазины/бутики, Помещения свободного назначения, Рестораны/кафе/бары, Часть здания, Офисы, Склады, Другое, Отдельно стоящие здания, Базы отдыха, Помещения промышленного назначения

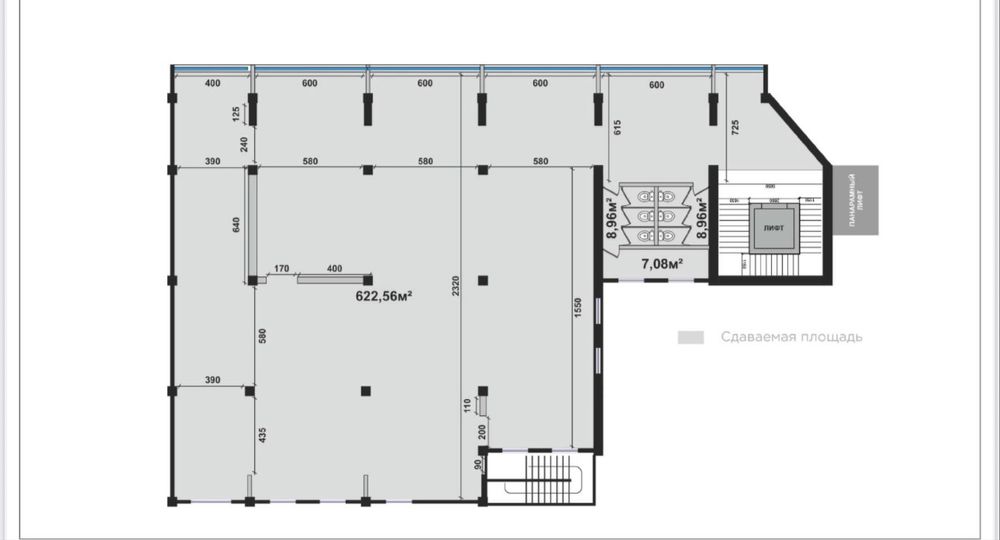
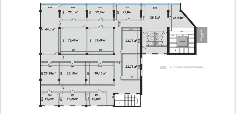
Общая площадь: 10 000 м²

Расположение: Бизнес центр

Этажность дома: 11

В помещении есть: Все коммуникации

Наличие парковки: Да

Комиссионные: Нет

Описание

В продаже предлагаются офисные этажи с 5 по 9 — выберите нужную площадь и планировку под свой формат работы.

Преимущества:
• Район с развитой инфраструктурой — всё рядом
• Удобная и вместительная парковка
• Метро всего в нескольких минутах ходьбы
• Гибкие планировки: open space или кабинетная система

Актуальная информация:
Этажи 1–3 уже проданы, в продаже — помещения начиная с 4-го этажа.

Цена: 2 500 у.е. за м²
Для реальных покупателей — индивидуальные условия и ощутимые скидки.
ID: 61938170

Связаться с продавцом

Investor

на OLX с декабрь 2023 г.

Онлайн 21 октября 2025 г.

xxx xxx xxx

Опубликовано 21 октября 2025 г.

Продажа|Бизнес центр|Любая площадь|метро машинасозлар|Офис|office

2 500 у.е.

Договорная

Пользователь

Местоположение

Location

Ташкент, Яшнабадский район

Ташкентская область

Бесплатное приложение для твоего телефона