Бизнес
Тип недвижимости: Магазины/бутики, Салоны, Рестораны/кафе/бары, Офисы, Отдельно стоящие здания, Базы отдыха, Помещения свободного назначения
Общая площадь: 432 м²
Полезная площадь: 400
Расположение: Коттедж
Участок: 2
Этаж: 1
Этажность дома: 2
Высота потолков: 3.40
Ремонт: Черновая отделка
В помещении есть: Интернет, Все коммуникации, Видеонаблюдение, Входная группа
Наличие парковки: Да
Комиссионные: Нет
Описание
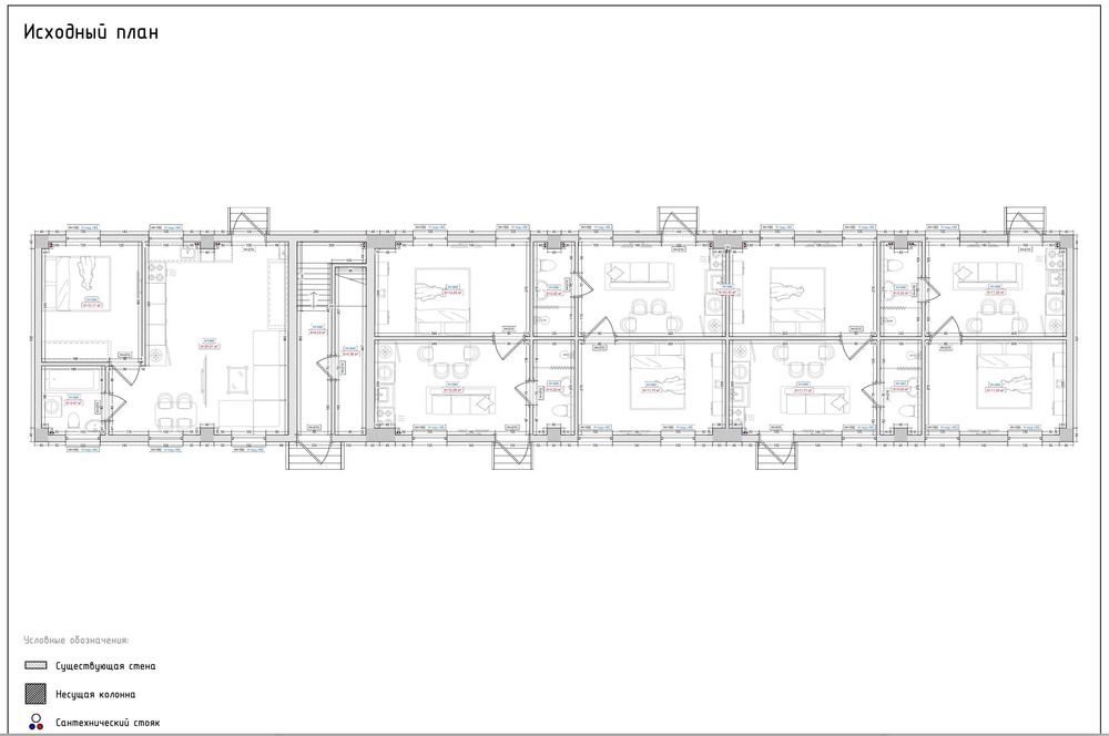
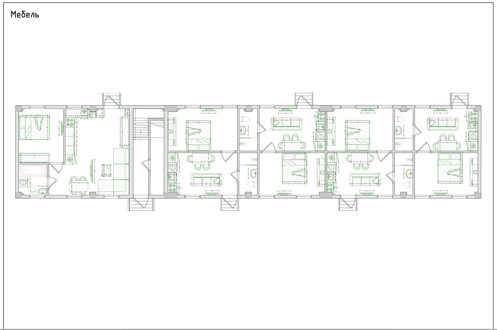
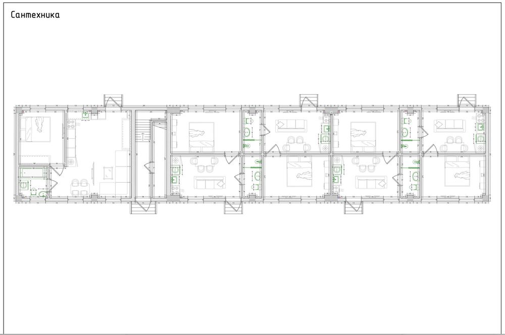
Описание двухэтажного нежилого комплекса в Янгиюле (общая площадь 432 м²). Здание полностью готово к запуску бизнеса — гостиница, мини-клиника, учебный центр или аналогичный объект. Линейная планировка с центральным коридором обеспечивает удобный доступ, приватность и гибкость в использовании 17 помещений. Прилагаемые планы (исходный, с мебелью и сантехникой) наглядно показывают продуманную структуру для обоих этажей. Черновой ремонт. Покрасим в любой цвет - под ваш бизнес!
Расположен в центре города, по улице Самаркандская, ориентир — Янгийуль Табака. Рядом активно строится новый жилой массив на 400 квартир, что значительно повышает коммерческий потенциал объекта.
Основные характеристики:
Расположение: Янгиюль — перспективный город рядом с Ташкентом, с отличной транспортной связью, близостью к природе и инфраструктуре. Подходит для привлечения клиентов из столицы и региона.
Структура: Два этажа, 17 помещений + лестницы. Первый этаж — 5 двухкомнатных модулей (25–35 м² каждый: две комнаты, санузел, кухонная/рабочая зона). Второй этаж — 11 однокомнатных модулей (15–25 м²: зона отдыха/работы, мини-кухня, санузел) + 1 хозяйственная комната для управляющего/персонала.
Готовность к эксплуатации:
Теплые полы.
Полная электропроводка с розетками.
Канализация, трубы горячей и холодной воды, счетчики.
Подключены электричество, вода и газ — всё в рабочем состоянии.
Ключевой плюс: высококачественное утепление
Стены, пол и потолки утеплены современным экструдированным пенополистиролом Пеноплэкс (Penoplex) — одним из лучших материалов для энергоэффективности в климате Узбекистана. Это создаёт надёжный барьер от холода зимой и жары летом:
Значительно снижает теплопотери через ограждающие конструкции (стены, пол, потолок/крышу).
Обеспечивает экономию на отоплении и кондиционировании — до 30–60 % в зависимости от толщины слоя и режима эксплуатации (по данным аналогичных проектов в регионе и рекомендациям по энергоэффективности).
Материал обладает низкой теплопроводностью (~0,030–0,032 Вт/м·К), практически не впитывает влагу, устойчив к деформациям и служит десятилетиями без потери свойств.
Дополнительно улучшает звукоизоляцию и комфорт внутри помещений круглый год.
Такая теплоизоляция особенно выгодна для коммерческого объекта: снижает эксплуатационные расходы (газ, электричество), повышает привлекательность для арендаторов/клиентов и увеличивает окупаемость инвестиций.
Варианты использования под бизнес:
Гостиница/хостел: 16 готовых номеров + комната администратора. Утепление гарантирует комфорт даже в холодные ночи или жару.
Мини-клиника/медцентр: Помещения под палаты, кабинеты, процедурные. Стабильный микроклимат важен для пациентов.
Учебный центр/офисы: Классы, аудитории, кабинеты. Экономия на климат-контроле + тихая атмосфера благодаря утеплению.
Это готовый энергоэффективный объект с минимальными вложениями на запуск!
Расположен в центре города, по улице Самаркандская, ориентир — Янгийуль Табака. Рядом активно строится новый жилой массив на 400 квартир, что значительно повышает коммерческий потенциал объекта.
Основные характеристики:
Расположение: Янгиюль — перспективный город рядом с Ташкентом, с отличной транспортной связью, близостью к природе и инфраструктуре. Подходит для привлечения клиентов из столицы и региона.
Структура: Два этажа, 17 помещений + лестницы. Первый этаж — 5 двухкомнатных модулей (25–35 м² каждый: две комнаты, санузел, кухонная/рабочая зона). Второй этаж — 11 однокомнатных модулей (15–25 м²: зона отдыха/работы, мини-кухня, санузел) + 1 хозяйственная комната для управляющего/персонала.
Готовность к эксплуатации:
Теплые полы.
Полная электропроводка с розетками.
Канализация, трубы горячей и холодной воды, счетчики.
Подключены электричество, вода и газ — всё в рабочем состоянии.
Ключевой плюс: высококачественное утепление
Стены, пол и потолки утеплены современным экструдированным пенополистиролом Пеноплэкс (Penoplex) — одним из лучших материалов для энергоэффективности в климате Узбекистана. Это создаёт надёжный барьер от холода зимой и жары летом:
Значительно снижает теплопотери через ограждающие конструкции (стены, пол, потолок/крышу).
Обеспечивает экономию на отоплении и кондиционировании — до 30–60 % в зависимости от толщины слоя и режима эксплуатации (по данным аналогичных проектов в регионе и рекомендациям по энергоэффективности).
Материал обладает низкой теплопроводностью (~0,030–0,032 Вт/м·К), практически не впитывает влагу, устойчив к деформациям и служит десятилетиями без потери свойств.
Дополнительно улучшает звукоизоляцию и комфорт внутри помещений круглый год.
Такая теплоизоляция особенно выгодна для коммерческого объекта: снижает эксплуатационные расходы (газ, электричество), повышает привлекательность для арендаторов/клиентов и увеличивает окупаемость инвестиций.
Варианты использования под бизнес:
Гостиница/хостел: 16 готовых номеров + комната администратора. Утепление гарантирует комфорт даже в холодные ночи или жару.
Мини-клиника/медцентр: Помещения под палаты, кабинеты, процедурные. Стабильный микроклимат важен для пациентов.
Учебный центр/офисы: Классы, аудитории, кабинеты. Экономия на климат-контроле + тихая атмосфера благодаря утеплению.
Это готовый энергоэффективный объект с минимальными вложениями на запуск!
ID: 63574893
Связаться с продавцом
xxx xxx xxx
Опубликовано 21 февраля 2026 г.
Продажа - аренда коммерческого комплекса в Янгиюле - 430 квм
300 000 у.е.
Местоположение
Янгиюль
Ташкентская область