Перейти к основному разделу
Чат
  • O'Z
  • Рус

Уведомления

Подать объявление
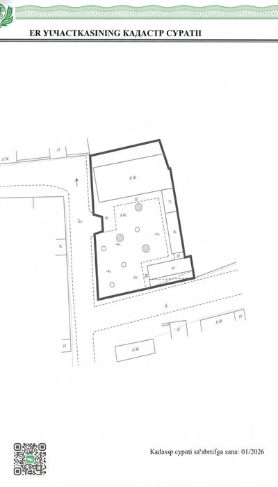
Продаётся участок Сергели узгарыш от центральной дороги 600 метров 
От
Продаётся участок Сергели узгарыш от центральной дороги 600 метров 
От
Продаётся участок Сергели узгарыш от центральной дороги 600 метров 
От
Продаётся участок Сергели узгарыш от центральной дороги 600 метров 
От
Продаётся участок Сергели узгарыш от центральной дороги 600 метров 
От
РекламироватьПоднять

Частное лицо

Количество комнат: 4

Общая площадь: 6 м²

Жилая площадь: 120 м²

Расположение: В городе

Этажность дома: 1

Высота потолков: 3

Меблирован: Да

Площадь участка: 6

Состояние дома: Средний ремонт, Требует ремонта, Под снос

Тип дома: Дом

Тип строения: Кирпичный

Вода: В доме, Центральное водоснабжение

Электричество: Есть

Отопление: Электрическое

Газ: Магистральный

Санузел: 2 санузла и более

Год постройки/сдачи: 1990 - 2000

В доме / на участке есть: Интернет, Сауна, баня, Спутниковое телевидение, Телефон, Бассейн, Гараж, Кондиционер, Бытовая техника, Канализация, Огород

Рядом есть: Больница, поликлиника, Школа, Детская площадка, Детский сад, Остановки, Парк, зелёная зона, Развлекательные заведения, Рестораны, кафе, Стоянка, Супермаркет, магазины

Комиссионные: Нет

Описание

Продаётся участок Сергели узгарыш от центральной дороги 600 метров
Отличная локация
Идеальный вариант
Правильный формы под застройку
5.69 соток
Угловой фасад
Цена 132000$
Можно В Ипотеку
срочно срочно срочно
90 002 99 02
#недвижимость
#продажадома
#продажанедвижимости
#купитьдом
#домпродается
#доммечты
#свойдом
#новыйдом
Сергели
ID: 63172310

Связаться с продавцом

998900029902

на OLX с декабрь 2025 г.

Онлайн вчера в 16:29

xxx xxx xxx

Опубликовано 03 февраля 2026 г.

Продаётся участок Сергели узгарыш от центральной дороги 600 метров От

130 000 у.е.

Пользователь

Местоположение

Location

Ташкент, Сергелийский район

Ташкентская область

Бесплатное приложение для твоего телефона