Перейти к основному разделу
Чат
  • O'Z
  • Рус

Уведомления

Подать объявление
Продаётся офис в бизнес центре
Продаётся офис в бизнес центре
Продаётся офис в бизнес центре
Продаётся офис в бизнес центре
Продаётся офис в бизнес центре
Продаётся офис в бизнес центре
Продаётся офис в бизнес центре
РекламироватьПоднять

Бизнес

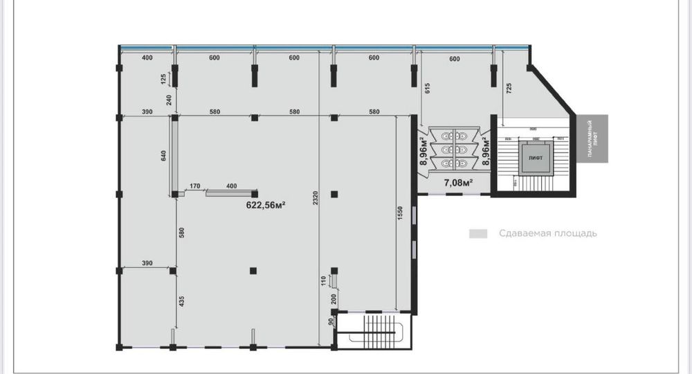
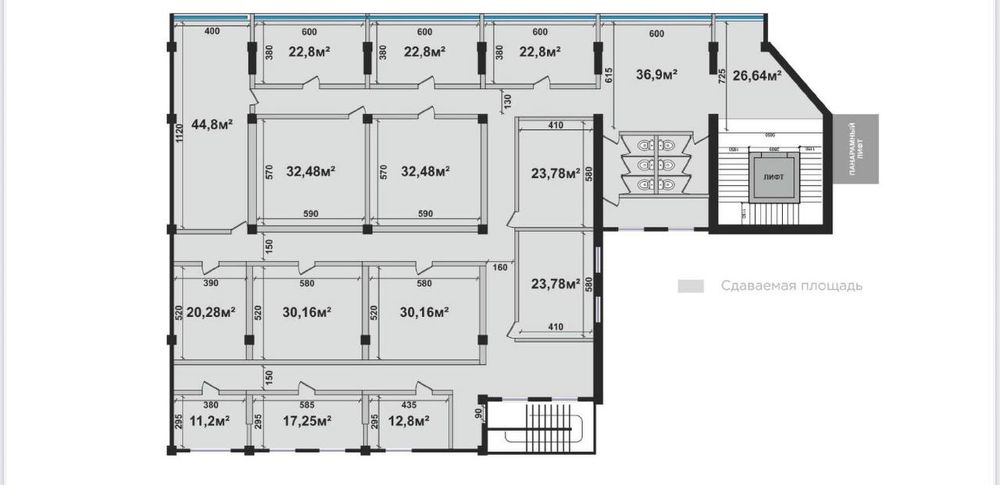
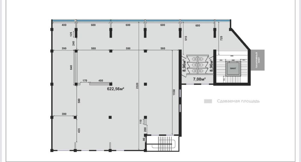
Тип недвижимости: Магазины/бутики, Салоны, Рестораны/кафе/бары, Офисы

Общая площадь: 10 000 м²

Этажность дома: 11

В помещении есть: Сигнализация, Пожарная сигнализация, Видеонаблюдение

Наличие парковки: Да

Комиссионные: Нет

Описание

Предлагаются современные офисные помещения в новом бизнес-центре.

Продажа только двух этажей с 5 по 9 на выбор, любая квадратура, любая площадь на ваш выбор.

Преимущества:
• Развитая инфраструктура района
• Удобная парковка — мест хватает всем
• Метро в шаговой доступности
• Планировки: open space или кабинеты

Статус этажей:
1–3 этажи уже сданы, доступны помещения с 4 этажа и выше.

• Стоимость продажи: 31250000 за 1 м²

Реальным клиентам - реальные уступки!

Номер для связи : 981424545/998953133
ID: 62080476

Связаться с продавцом

Shaxzod

на OLX с март 2025 г.

Онлайн вчера в 12:29

xxx xxx xxx

Опубликовано 08 января 2026 г.

Продаётся офис в бизнес центре

31 250 000 сум

Пользователь

Местоположение

Location

Мирабад

Ташкентская область

Бесплатное приложение для твоего телефона