Перейти к основному разделу
Чат
  • O'Z
  • Рус

Уведомления

Ваш профиль

Подать объявление
Продаётся квартира
Продаётся квартира
Продаётся квартира
Продаётся квартира
Продаётся квартира
РекламироватьПоднять

Частное лицо

Тип жилья: Новостройки

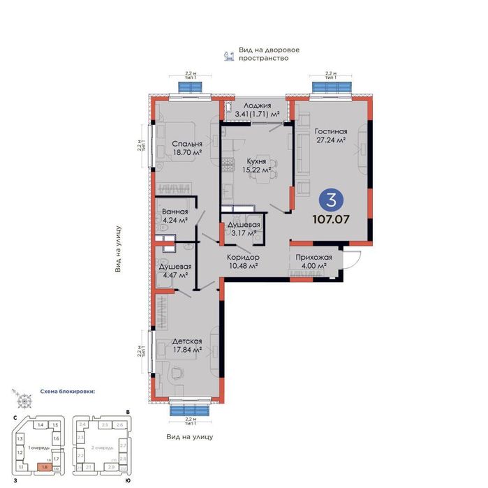
Количество комнат: 3

Общая площадь: 107.36

Этаж: 8

Этажность дома: 12

Тип строения: Кирпичный

Планировка: Смежная

Год постройки/сдачи: 2025

Санузел: Раздельный

Меблирована: Нет

В квартире есть: Балкон

Рядом есть: Больница, поликлиника, Детская площадка, Детский сад, Остановки, Парк, зелёная зона, Развлекательные заведения, Рестораны, кафе, Стоянка, Супермаркет, магазины, Школа

Ремонт: Черновая отделка

Комиссионные: Нет

Описание

ПРОДАЖА
NRG JOMIY
Алмазарский район
-3 комнатная
- 7 и 8 этаж
- 12 этажный дом общая площадь 107,26 мкв
Тип дома Новостройка.
Состояние коробка
детская площадка
охраняемый двор
ID: 61112294

Связаться с продавцом

hashimbarat

на OLX с апрель 2025 г.

Онлайн 17 ноября 2025 г.

xxx xxx xxx

Опубликовано 09 марта 2026 г.

Продаётся квартира

127 999 у.е.

Договорная

Пользователь

Местоположение

Location

Ташкент, Алмазарский район

Ташкентская область

Бесплатное приложение для твоего телефона