Бизнес
Тип жилья: Новостройки
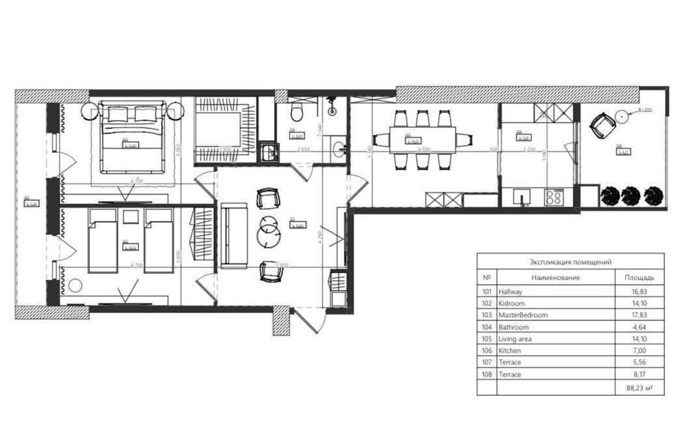
Количество комнат: 3
Общая площадь: 84
Этаж: 2
Этажность дома: 13
Меблирована: Нет
Ремонт: Черновая отделка
Комиссионные: Нет
Описание
Юнусабадский район
Ориентир-Алайский рынок
Новостройка
Ж/К Imperial Club
Комнат-3
Этаж-2
Этажность-13
Площадь-84 м2 + 2 балкона
Состояние- коробка
Вид во двор и на главную улицу
На площадке 4 квартиры
Цена-175 000 y.e срочно
+998935700395
Ориентир-Алайский рынок
Новостройка
Ж/К Imperial Club
Комнат-3
Этаж-2
Этажность-13
Площадь-84 м2 + 2 балкона
Состояние- коробка
Вид во двор и на главную улицу
На площадке 4 квартиры
Цена-175 000 y.e срочно
+998935700395
ID: 63348553
Связаться с продавцом
xxx xxx xxx

