Бизнес
Тип жилья: Новостройки
Количество комнат: 3
Общая площадь: 86
Этаж: 2
Этажность дома: 12
Санузел: 2 санузла и более
Меблирована: Нет
Рядом есть: Больница, поликлиника, Школа, Детская площадка, Детский сад, Остановки, Парк, зелёная зона, Развлекательные заведения, Рестораны, кафе, Стоянка
Ремонт: Черновая отделка
Комиссионные: Нет
Описание
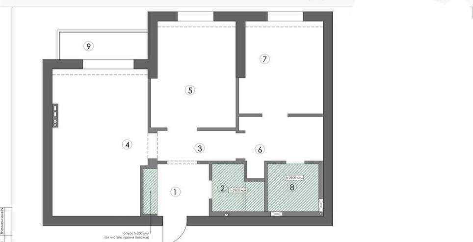
Продаётся 3-комнатная квартира в Мирабадском районе
Ориентир: Госпитальный
ЖК Mirabad Avenue
Характеристики:
Этаж: 2 из 12
Площадь: 86 кв.м
Планировка: 3 комнаты
Состояние: коробка
Расположение: 3-я линия, окна выходят во двор
Стоимость: 273 000 $
Престижный жилой комплекс в удобной локации. Квартира с рациональной планировкой, тихий двор и развитая инфраструктура района. Отличный вариант для проживания и инвестиций.
Телефон для связи: +998 99 917 00 02
+998 99 382 22 82
Ориентир: Госпитальный
ЖК Mirabad Avenue
Характеристики:
Этаж: 2 из 12
Площадь: 86 кв.м
Планировка: 3 комнаты
Состояние: коробка
Расположение: 3-я линия, окна выходят во двор
Стоимость: 273 000 $
Престижный жилой комплекс в удобной локации. Квартира с рациональной планировкой, тихий двор и развитая инфраструктура района. Отличный вариант для проживания и инвестиций.
Телефон для связи: +998 99 917 00 02
+998 99 382 22 82
ID: 61517090
Связаться с продавцом
xxx xxx xxx

