Бизнес
Тип жилья: Новостройки
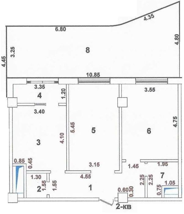
Количество комнат: 3
Общая площадь: 78
Этаж: 1
Этажность дома: 10
Тип строения: Кирпичный
Меблирована: Нет
Комиссионные: Нет
Описание
ЖК Кох Ота 3/1/10
Лабзак
Площадь: 78 кв.м
Состояние: коробка
Своя терраса
Закрытый охраняемый двор
Подземная парковка
Кадастр имеется
Дом заселен
В цену входит 1 надземное парковочное место
Цена: 130.000$
По вопросам пишите в Telegram
+998900300897
регина 777
Лабзак
Площадь: 78 кв.м
Состояние: коробка
Своя терраса
Закрытый охраняемый двор
Подземная парковка
Кадастр имеется
Дом заселен
В цену входит 1 надземное парковочное место
Цена: 130.000$
По вопросам пишите в Telegram
+998900300897
регина 777
ID: 64260126
Связаться с продавцом
xxx xxx xxx
