Бизнес
Тип недвижимости: Другое, Офисы, Отдельно стоящие здания, Помещения свободного назначения
Общая площадь: 210 м²
Расположение: Бизнес центр
Этаж: 1
Этажность дома: 4
Высота потолков: 3.50
Ремонт: Евроремонт
В помещении есть: Интернет, Цоколь, Все коммуникации, Телефон, Сигнализация, Кондиционер, Пожарная сигнализация, Видеонаблюдение, Круглосуточная охрана
Наличие парковки: Да
Комиссионные: Да
Описание
Яккасарайский район, улица Нукусская пересечение с улицей Бабура и Абдуллы Каххара рядом 1-я Нотариальная Контора напротив Ж\К "Piramit tower".
Сдаётся: В долгосрочную аренду, отдельно стоящей 4 -х этажном элитном бизнес центре, на первом этаже: 210 кв.м на 2 м и 3 м этаже 250 кв.м четвертый этаж 500 кв.м полезной площади, в здание два лифта, своя парковочная территория, ресепшен и охрана на каждый крыльце, чиллер кондиционирование, теплый пол, витражные окно ,высота потолков 4 метра,в арендную оплату включено все коммунальные расходы, ресепшен, уборка, охрана (по мимо свет и интернет),в том числе НДС и налог,цена указанная в объявление за полезной площади 210 кв.м 1 кв.м 30 у.е при предоплате разумный торг уместен )
Первый этаж: Полезная площадь 210 общая 245 кв.м (оплата производиться за полезной площади) кв.м Ресепшен, директорская со своим санузлом три большие комнаты, санузел, кухня, комната для технического персонала.
Второй этаж: Полезная площадь 250 общая 285 кв.м (оплата производиться за полезной площади). Пять рабочих кабинета из них одна комната директорская со своим санузлом, дополнительно кухня, комната для технического персонала, два санузла.
Третий этаж :Полезная площадь 250 общая 285 кв.м (оплата производиться за полезной площади) Пять рабочих кабинета из них одна комната директорская со своим санузлом, дополнительно кухня, комната для технического персонала, два санузла.
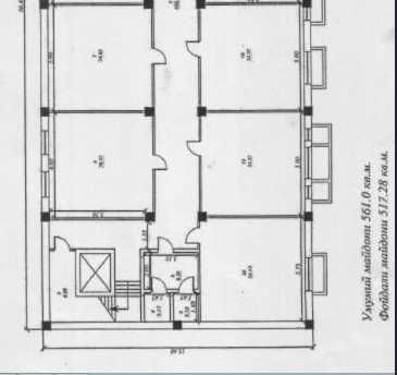
Четвертый этаж : Полезная площадь 500 кв.м общая 571 кв.м восемь рабочих кабинета из них два директорский со своим санузлом и душ кабиной, шесть комнат для рабочего персонала, дополнительно два кабинета для технического персонала, кухня на каждой крыльце и по два санузла, цена аренды 4 го этаже 25 у.е за полезной площади.
Ремонт евро, без офисной мебели (мебель по договоренности).
Комиссия агентства 50 % с первого месяца, форма оплаты любая.
Район имеет развитую инфраструктуру: школы, детские сады, магазины супермаркеты, кафе рестораны, развлекательные заведение, гостиницы, медицинские клиники, поликлиники.
Для более подробной информацией звоните.
Собственника недвижимости представляет:
ООО «GOLD REAL ESTATE»
лицензия гос. Ком. Конкуренции rl 001 №0041
Сдаётся: В долгосрочную аренду, отдельно стоящей 4 -х этажном элитном бизнес центре, на первом этаже: 210 кв.м на 2 м и 3 м этаже 250 кв.м четвертый этаж 500 кв.м полезной площади, в здание два лифта, своя парковочная территория, ресепшен и охрана на каждый крыльце, чиллер кондиционирование, теплый пол, витражные окно ,высота потолков 4 метра,в арендную оплату включено все коммунальные расходы, ресепшен, уборка, охрана (по мимо свет и интернет),в том числе НДС и налог,цена указанная в объявление за полезной площади 210 кв.м 1 кв.м 30 у.е при предоплате разумный торг уместен )
Первый этаж: Полезная площадь 210 общая 245 кв.м (оплата производиться за полезной площади) кв.м Ресепшен, директорская со своим санузлом три большие комнаты, санузел, кухня, комната для технического персонала.
Второй этаж: Полезная площадь 250 общая 285 кв.м (оплата производиться за полезной площади). Пять рабочих кабинета из них одна комната директорская со своим санузлом, дополнительно кухня, комната для технического персонала, два санузла.
Третий этаж :Полезная площадь 250 общая 285 кв.м (оплата производиться за полезной площади) Пять рабочих кабинета из них одна комната директорская со своим санузлом, дополнительно кухня, комната для технического персонала, два санузла.
Четвертый этаж : Полезная площадь 500 кв.м общая 571 кв.м восемь рабочих кабинета из них два директорский со своим санузлом и душ кабиной, шесть комнат для рабочего персонала, дополнительно два кабинета для технического персонала, кухня на каждой крыльце и по два санузла, цена аренды 4 го этаже 25 у.е за полезной площади.
Ремонт евро, без офисной мебели (мебель по договоренности).
Комиссия агентства 50 % с первого месяца, форма оплаты любая.
Район имеет развитую инфраструктуру: школы, детские сады, магазины супермаркеты, кафе рестораны, развлекательные заведение, гостиницы, медицинские клиники, поликлиники.
Для более подробной информацией звоните.
Собственника недвижимости представляет:
ООО «GOLD REAL ESTATE»
лицензия гос. Ком. Конкуренции rl 001 №0041
ID: 58059251
Связаться с продавцом
xxx xxx xxx
