Бизнес
Количество комнат: 6
Общая площадь: 480 м²
Жилая площадь: 360 м²
Расположение: В пригороде
Этажность дома: 4
Высота потолков: 320
Меблирован: Нет
Площадь участка: 200
Состояние дома: Авторский проект, Черновая отделка
Тип дома: Коттедж
Тип строения: Кирпичный
Вода: Центральное водоснабжение
Электричество: Есть
Отопление: На газе
Газ: Магистральный
Санузел: 2 санузла и более
Год постройки/сдачи: сдача в 2026
В доме / на участке есть: Подвал, кладовка, Канализация, Огород, Охрана
Рядом есть: Больница, поликлиника, Школа, Детская площадка, Детский сад, Остановки, Парк, зелёная зона, Развлекательные заведения, Рестораны, кафе, Стоянка, Супермаркет, магазины
Комиссионные: Нет
Описание
уникальная возможность приобрести 4х этажный коттедж за 57500
480 кв метров
0й этаж. 120 кв метров
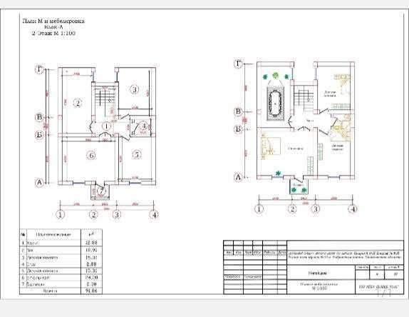
1й этаж. холл, кухня, зал, родительская спальня и санузел.
2й этаж. холл, большая родительская спальня + балкон, зал, два детских комнат и два санузла
3й этаж. мансарда 120 кв метров
при оплате в размере 50% 57500 вы сможете получать от нас кадастр и договор в нотариусе
остаток на 60 месяцев без процентов %
предложение действует до 22 го декабря
коттедж находится в 5 и км от поста учкахрамон
480 кв метров
0й этаж. 120 кв метров
1й этаж. холл, кухня, зал, родительская спальня и санузел.
2й этаж. холл, большая родительская спальня + балкон, зал, два детских комнат и два санузла
3й этаж. мансарда 120 кв метров
при оплате в размере 50% 57500 вы сможете получать от нас кадастр и договор в нотариусе
остаток на 60 месяцев без процентов %
предложение действует до 22 го декабря
коттедж находится в 5 и км от поста учкахрамон
ID: 62681604
Связаться с продавцом
xxx xxx xxx

