Бизнес
Тип жилья: Вторичный рынок
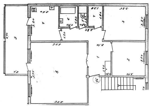
Количество комнат: 4
Общая площадь: 92
Этаж: 3
Этажность дома: 5
Меблирована: Нет
Ремонт: Требует ремонта
Комиссионные: Нет
Описание
‼️Продажа квартиры‼️
4/3/5
Вторичка
Район: Мирзо-Улугбекск
Массив: Карасу-2
Ориентир: 208-школа, базарчик
Количество комнат: 4
Этаж: 3
Этажность дома: 5
Общая площадь: 92м2
Состояние: Требует ремонта
Удвоенный зал
Торцевая
Цена: 89.999
Срочно!!!
4/3/5
Вторичка
Район: Мирзо-Улугбекск
Массив: Карасу-2
Ориентир: 208-школа, базарчик
Количество комнат: 4
Этаж: 3
Этажность дома: 5
Общая площадь: 92м2
Состояние: Требует ремонта
Удвоенный зал
Торцевая
Цена: 89.999
Срочно!!!
ID: 62082649
Связаться с продавцом
xxx xxx xxx
