Бизнес
Тип жилья: Новостройки
Количество комнат: 3
Жилая площадь: 137 м²
Общая площадь: 247
Этаж: 9
Этажность дома: 9
Тип строения: Кирпичный
Планировка: Раздельная
Год постройки/сдачи: 2001 - 2010
Санузел: 2 санузла и более
Меблирована: Нет
Высота потолков: 300
Ремонт: Предчистовая отделка
Комиссионные: Нет
Описание
Горячая цена‼️
Габус 3/9/9 с террасой
Яккасарайский район
Ориентир Глинка ГАИ
ул, Нукусская
Комната: 3
Этаж: 9
Этажность: 9
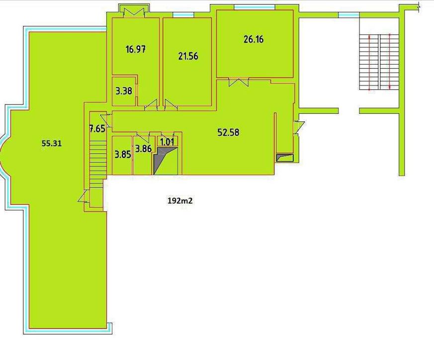
Площадь: 247 м2 (110 м2 терраса)
Половина террасы входит в кадастр
По кадастру 192 м2
20м2 кладовая в бонусе!
Состояние white box
Сантехника
Электрика
Стяжка
Тёплый пол
Цена 240 000 у.е/без торга
999251771 Абдурашид
Габус 3/9/9 с террасой
Яккасарайский район
Ориентир Глинка ГАИ
ул, Нукусская
Комната: 3
Этаж: 9
Этажность: 9
Площадь: 247 м2 (110 м2 терраса)
Половина террасы входит в кадастр
По кадастру 192 м2
20м2 кладовая в бонусе!
Состояние white box
Сантехника
Электрика
Стяжка
Тёплый пол
Цена 240 000 у.е/без торга
999251771 Абдурашид
ID: 61985982
Связаться с продавцом
xxx xxx xxx

