Бизнес
Тип жилья: Новостройки
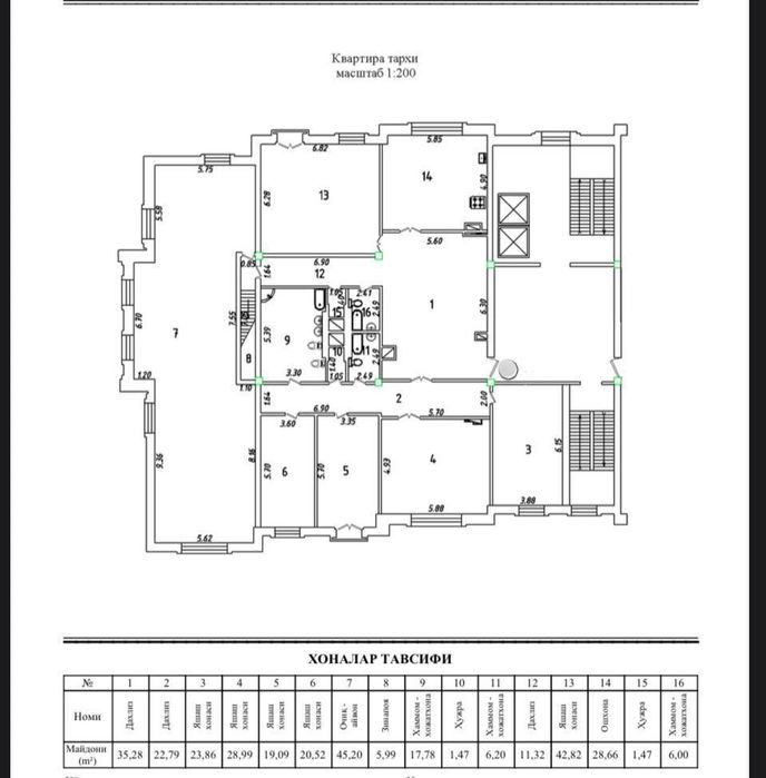
Количество комнат: 5
Общая площадь: 325
Этаж: 9
Этажность дома: 9
Меблирована: Нет
Рядом есть: Школа, Детская площадка, Детский сад, Остановки, Развлекательные заведения, Рестораны, кафе, Супермаркет, магазины
Ремонт: Предчистовая отделка
Комиссионные: Нет
Описание
НОВОСТРОЙКА
Район: #Яккасарай
Улица: Кичик Бешагач и Нукусская
ЖК: GABUS /1
Комнат: #5
Этаж: 9
Этажность: 9
Площадь: 325м2: 133м2+192м2 с террасой
Состояние: предчистовая отделка / перегородки/ электромонтаж
Примечание: 50м2 кладовая в подарок! Квартира разделена на 2 кадастра.
ЦЕНА: 465.000у.е.: 225.000у.е. +240.000у.е.
Район: #Яккасарай
Улица: Кичик Бешагач и Нукусская
ЖК: GABUS /1
Комнат: #5
Этаж: 9
Этажность: 9
Площадь: 325м2: 133м2+192м2 с террасой
Состояние: предчистовая отделка / перегородки/ электромонтаж
Примечание: 50м2 кладовая в подарок! Квартира разделена на 2 кадастра.
ЦЕНА: 465.000у.е.: 225.000у.е. +240.000у.е.
ID: 61421009
Связаться с продавцом
xxx xxx xxx
