Частное лицо
Тип: Другое
Описание
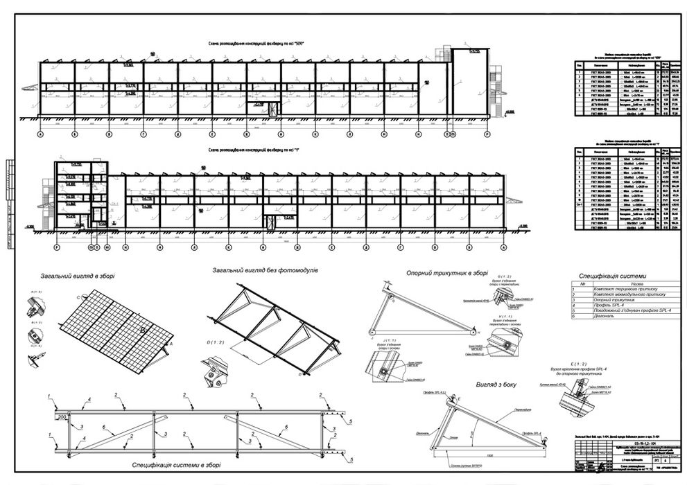
Мы разрабатываем рабочую и проектную документацию для объектов с использованием солнечных панелей. Все расчёты и схемы выполняются с учётом нормативных требований, условий объекта и задач заказчика. Гарантируем аккуратное оформление, профессиональный подход и соблюдение сроков.
Наши услуги:
проектирование систем с солнечными панелями
разработка рабочей и проектной документации
технические и электрические расчёты
однолинейные и принципиальные схемы
чертежи и компоновочные решения
пояснительные записки
Работаем с частными и коммерческими объектами.
Стоимость услуг — договорная.
Наши услуги:
проектирование систем с солнечными панелями
разработка рабочей и проектной документации
технические и электрические расчёты
однолинейные и принципиальные схемы
чертежи и компоновочные решения
пояснительные записки
Работаем с частными и коммерческими объектами.
Стоимость услуг — договорная.
ID: 62785971
Связаться с продавцом
xxx xxx xxx
Опубликовано 24 декабря 2025 г.
Документация для солнечных панелей
Местоположение