Бизнес
Тип недвижимости: Магазины/бутики, Салоны, Рестораны/кафе/бары, Офисы
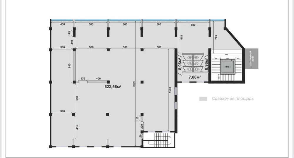
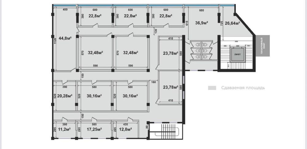
Общая площадь: 10 000 м²
Этажность дома: 11
В помещении есть: Сигнализация, Пожарная сигнализация, Видеонаблюдение
Наличие парковки: Да
Комиссионные: Нет
Описание
Янги бизнес-марказда замонавий офис хоналари таклиф этилади.
5-қаватдан 9-қаватгача бўлган қаватлардан фақат икки қават сотувда. Истаган майдон ва истаган квадратурани танлашингиз мумкин.
Афзалликлар:
• Район инфратузилмаси яхши ривожланган
• Қулай автопарковка — ҳамма учун жой бор
• Метро пиёда юриш масофасида
• Реjalash: open space ёки кабинет тизими
Қаватлар ҳолати:
1–3-қаватлар аллақачон берилган, 4-қаватдан юқори хоналар мавжуд.
• Сотув нархи: 31 250 000 сўм / 1 м²
Ҳақиқий клиентлар учун — ҳақиқий чегирмалар!
5-қаватдан 9-қаватгача бўлган қаватлардан фақат икки қават сотувда. Истаган майдон ва истаган квадратурани танлашингиз мумкин.
Афзалликлар:
• Район инфратузилмаси яхши ривожланган
• Қулай автопарковка — ҳамма учун жой бор
• Метро пиёда юриш масофасида
• Реjalash: open space ёки кабинет тизими
Қаватлар ҳолати:
1–3-қаватлар аллақачон берилган, 4-қаватдан юқори хоналар мавжуд.
• Сотув нархи: 31 250 000 сўм / 1 м²
Ҳақиқий клиентлар учун — ҳақиқий чегирмалар!
ID: 62142057
Связаться с продавцом
xxx xxx xxx
Опубликовано 13 ноября 2025 г.
Бизнес центрда офис сотилади
31 250 000 сум
Местоположение
Мирабад
Ташкентская область