Перейти к основному разделу
Чат
  • O'Z
  • Рус

Уведомления

Подать объявление
Арендага офис бизнес центра
Арендага офис бизнес центра
Арендага офис бизнес центра
Арендага офис бизнес центра
Арендага офис бизнес центра
Арендага офис бизнес центра
Арендага офис бизнес центра
РекламироватьПоднять

Бизнес

Тип недвижимости: Магазины/бутики, Салоны, Рестораны/кафе/бары, Офисы

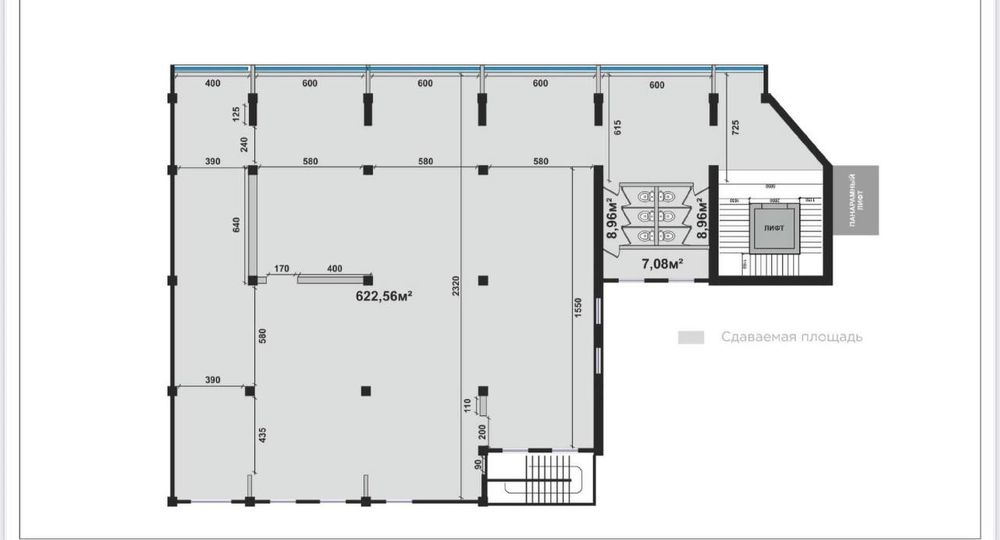
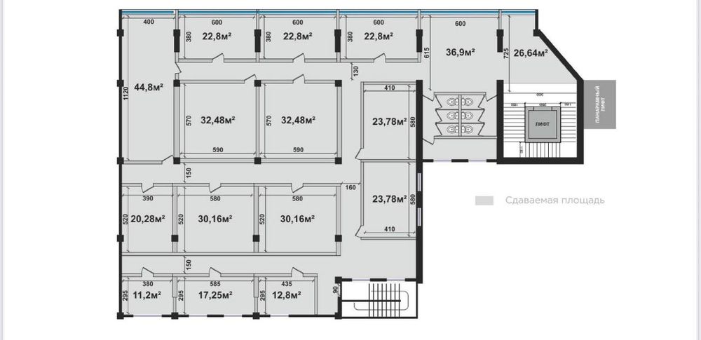
Общая площадь: 10 000 м²

Расположение: Бизнес центр

Этажность дома: 11

В помещении есть: Сигнализация, Пожарная сигнализация, Видеонаблюдение

Наличие парковки: Да

Комиссионные: Нет

Описание

Янги бизнес-марказда замонавий офис хоналари ижарага таклиф этилади. Таъмир билан ёки таъмирсиз ҳолатда — сизга қулай вариантни танланг.

Афзалликлар:
• Ривожланган инфратузилма, барча зарур қулайликлар яқинида
• Катта ва қулай автотураргоҳ — ҳамма учун жой етарли
• Метрога пиёда бориш мумкин
• Режалар: open space ёки кабинетли шаклда

Қаватлар бўйича маълумот:
1–3-қаватлар ижарага берилган. 4-қават ва ундан юқори хоналар ҳозирда мавжуд.

Ижара нархлари:
• Таъмирсиз — 1 м² учун 250 000 сўм
• Таъмир билан — 1 м² учун 312 000 сум

Телефон ракам : 998953133
ID: 62157026

Связаться с продавцом

Shaxzod

на OLX с март 2025 г.

Онлайн в 06:29

xxx xxx xxx

Опубликовано Сегодня в 06:31

Арендага офис бизнес центра

250 000 сум

Пользователь

Местоположение

Location

Мирабад

Ташкентская область

Бесплатное приложение для твоего телефона