Бизнес
Тип недвижимости: Отдельно стоящие здания
Общая площадь: 1 008 м²
Расположение: Отдельно стоящие здания
Ремонт: Авторский проект
Наличие парковки: Да
Комиссионные: Да
Описание
Аренда коммерческого помещения в Бизнес парке,
Яшнабадский район, улица Махтумкули, ориентир Арка Мебель
Первая линия
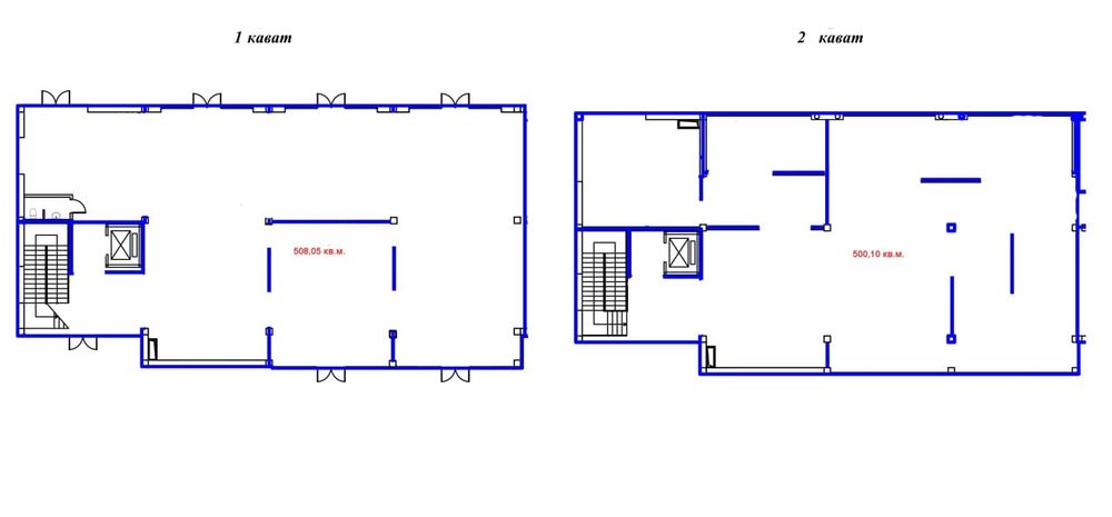
Площадь: 1.008 м2
Первый этаж - 452 м2,
Второй этаж - 556 м2
Высота потолков: 4,2 метра
Комнат: опен спейс
Состояние: с ремонтом
Описание:
— Доступ 24/7;
— Помещение подходит для размещения шоурума, магазина, ресторана, отделения банка, caлoна красоты, медицинского центра, учебного центра;
— Рядом 3 жилых комплекса и 5 бизнес центров, длинный фасад и общественная остановка;
— На первом этаже имеются двери для выхода во внутренний дворик с возможностью размещения столов;
— Отдельно стоящее здание, что дает возможность для свободной прокладки коммуникаций;
— Имеется VRF система и системы вентиляции и приточки;
— Имеется лифт KONE (-1, 1, 2 этажи)
— Возможность выделения мест в подземном паркинге и доступ к лифту;
— Свободная планировка без несущих стен;
Депозит: 1 месяц
Каникулы: 1 месяц
В стоимость не включены:
- НДФЛ
- УК и коммунальные услуги
Возможна сдача в аренду по частям и этажам
Цена: 25 у.е. за 1 м2
+998949483333
Яшнабадский район, улица Махтумкули, ориентир Арка Мебель
Первая линия
Площадь: 1.008 м2
Первый этаж - 452 м2,
Второй этаж - 556 м2
Высота потолков: 4,2 метра
Комнат: опен спейс
Состояние: с ремонтом
Описание:
— Доступ 24/7;
— Помещение подходит для размещения шоурума, магазина, ресторана, отделения банка, caлoна красоты, медицинского центра, учебного центра;
— Рядом 3 жилых комплекса и 5 бизнес центров, длинный фасад и общественная остановка;
— На первом этаже имеются двери для выхода во внутренний дворик с возможностью размещения столов;
— Отдельно стоящее здание, что дает возможность для свободной прокладки коммуникаций;
— Имеется VRF система и системы вентиляции и приточки;
— Имеется лифт KONE (-1, 1, 2 этажи)
— Возможность выделения мест в подземном паркинге и доступ к лифту;
— Свободная планировка без несущих стен;
Депозит: 1 месяц
Каникулы: 1 месяц
В стоимость не включены:
- НДФЛ
- УК и коммунальные услуги
Возможна сдача в аренду по частям и этажам
Цена: 25 у.е. за 1 м2
+998949483333
ID: 64121772
Связаться с продавцом
xxx xxx xxx

