Перейти к основному разделу
Чат
  • O'Z
  • Рус

Уведомления

Подать объявление
Аренда офисов в бизнес центре|Arenda|Ijara|office|офис и т.д.
Аренда офисов в бизнес центре|Arenda|Ijara|office|офис и т.д.
Аренда офисов в бизнес центре|Arenda|Ijara|office|офис и т.д.
Аренда офисов в бизнес центре|Arenda|Ijara|office|офис и т.д.
Аренда офисов в бизнес центре|Arenda|Ijara|office|офис и т.д.
РекламироватьПоднять

Бизнес

Тип недвижимости: МАФ (малая архитектурная форма), Салоны, Магазины/бутики, Помещения свободного назначения, Рестораны/кафе/бары, Часть здания, Офисы, Склады, Другое, Отдельно стоящие здания, Базы отдыха, Помещения промышленного назначения

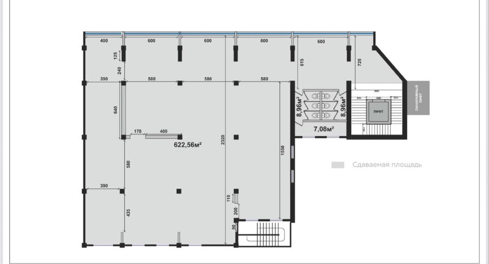
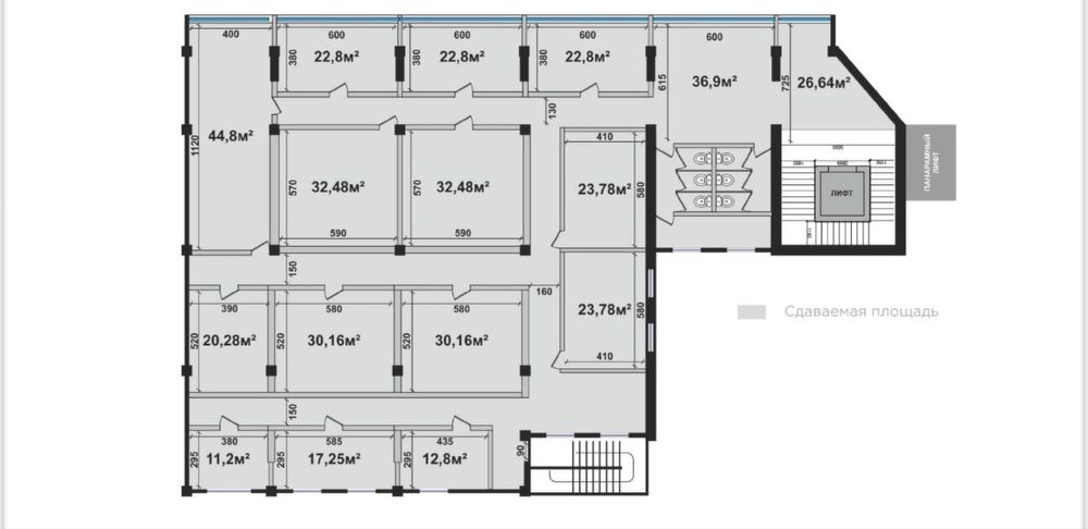
Общая площадь: 10 000 м²

Расположение: Бизнес центр

Этажность дома: 11

В помещении есть: Круглосуточная охрана, Пожарная сигнализация, Все коммуникации, Сигнализация, Видеонаблюдение, Кондиционер

Наличие парковки: Да

Комиссионные: Нет

Описание

Сдаются современные офисные помещения в новом бизнес-центре класса «А».

Доступны варианты с ремонтом или без — выбирайте формат под задачи вашей компании.

Преимущества:
• Район с развитой инфраструктурой
• Удобная и вместительная парковка
• Метро всего в нескольких минутах ходьбы
• Гибкие планировки: open space или кабинетная система

Статус помещений:
Этажи 1–3 уже заняты. В аренду доступны офисы с 4-го по 9-й этаж.

Стоимость аренды:
• Без ремонта — от 250.000/м²
• С ремонтом — от 312.500/м²

Современный офис, престижное расположение и удобства бизнес-класса — всё для комфортной работы вашей команды.
ID: 62065551

Связаться с продавцом

Investor

на OLX с декабрь 2023 г.

Онлайн 31 октября 2025 г.

xxx xxx xxx

Опубликовано 07 ноября 2025 г.

Аренда офисов в бизнес центре|Arenda|Ijara|office|офис и т.д.

250 000 сум

Договорная

Пользователь

Местоположение

Location

Ташкент, Мирабадский район

Ташкентская область

Бесплатное приложение для твоего телефона