Бизнес
Тип недвижимости: Магазины/бутики, МАФ (малая архитектурная форма), Часть здания, Другое, Салоны, Рестораны/кафе/бары, Офисы, Склады, Отдельно стоящие здания, Базы отдыха, Помещения промышленного назначения, Помещения свободного назначения
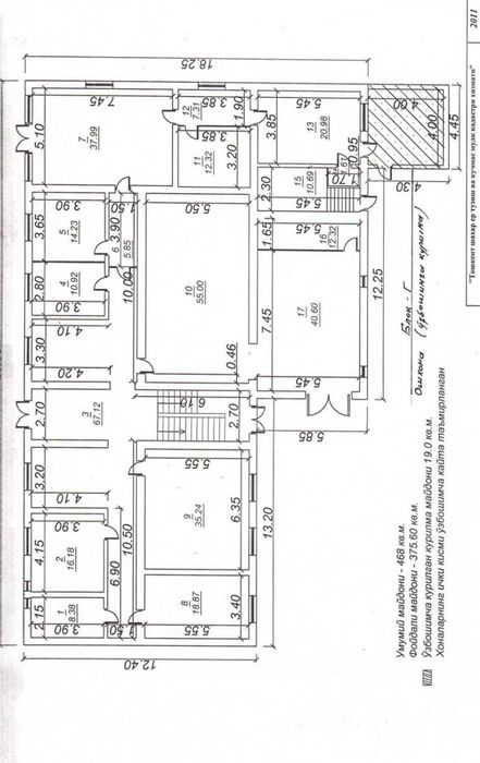
Общая площадь: 800 м²
Участок: 10
Этажность дома: 2
Наличие парковки: Да
Комиссионные: Да
Описание
Коммерческая аренда — 800 м² в центре Яшнабада
Джаркурганская, рядом с ж/к Bashkent (быв. Масло-Жир-Комбинат)
Отдельно стоящее здание, 2 этажа, 19 кабинетов
Нежилой фонд, гибкая планировка, свет и простор
Отдельный вход, статусная локация
Идеально для:
— IT-компании
— Медицинского центра
— Учебного заведения
— Представительства
6 500 у.е./мес. | Квартальная предоплата
Джаркурганская, рядом с ж/к Bashkent (быв. Масло-Жир-Комбинат)
Отдельно стоящее здание, 2 этажа, 19 кабинетов
Нежилой фонд, гибкая планировка, свет и простор
Отдельный вход, статусная локация
Идеально для:
— IT-компании
— Медицинского центра
— Учебного заведения
— Представительства
6 500 у.е./мес. | Квартальная предоплата
ID: 61938691
Связаться с продавцом
xxx xxx xxx
