Бизнес
Тип недвижимости: Отдельно стоящие здания
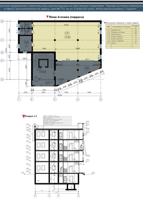
Общая площадь: 1 227 м²
Расположение: Отдельно стоящие здания
Этаж: 4
Этажность дома: 4
Ремонт: Евроремонт
В помещении есть: Все коммуникации
Наличие парковки: Да
Комиссионные: Нет
Описание
БЕЗ КОМИССИИ! Сдаётся отдельно стоящее 4-этажное здание с готовым ремонтом, расположенное вдоль оживлённой дороги (первая линия) в Алмазарском районе, на улице Сагбан, рядом с улицей Нурафшан.
В здании предусмотрена планировка опен спейс, что удобно для офисов, учебных центров и современных компаний. Хорошая видимость с дороги, удобный подъезд и высокий автомобильный трафик.
Рядом расположены:
• улица Себзар, Чорсу,Чигатай
• густонаселённый жилой массив
• остановки общественного транспорта
• магазины и объекты городской инфраструктуры
Подходит под офис, клинику, учебный центр, салон, шоурум, IT-компанию и другие виды деятельности.
В здании предусмотрена планировка опен спейс, что удобно для офисов, учебных центров и современных компаний. Хорошая видимость с дороги, удобный подъезд и высокий автомобильный трафик.
Рядом расположены:
• улица Себзар, Чорсу,Чигатай
• густонаселённый жилой массив
• остановки общественного транспорта
• магазины и объекты городской инфраструктуры
Подходит под офис, клинику, учебный центр, салон, шоурум, IT-компанию и другие виды деятельности.
ID: 63347599
Связаться с продавцом
xxx xxx xxx

