Перейти к основному разделу
Чат
  • O'Z
  • Рус

Уведомления

Ваш профиль

Подать объявление
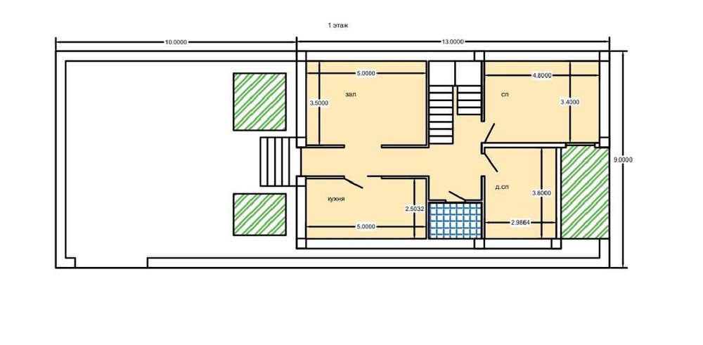
2 qavatli uchastka Yunusobod Hasanbоy, quruvchidan qurilish bosqichidа
РекламироватьПоднять

Бизнес

Количество комнат: 5

Общая площадь: 250 м²

Жилая площадь: 145 м²

Расположение: В городе

Этажность дома: 2

Высота потолков: 3.20

Меблирован: Нет

Площадь участка: 1.71

Состояние дома: Авторский проект

Тип дома: Дом

Тип строения: Кирпичный

Вода: В доме

Электричество: Есть

Отопление: На газе

Газ: Магистральный

Санузел: 2 санузла и более

Год постройки/сдачи: сдача в 2026

В доме / на участке есть: Интернет, Подвал, кладовка, Гараж, Канализация, Огород

Комиссионные: Нет

Описание

Manzil. Yunusobod yumani Xasanboy
Kadastor xujjatlari bor
2 ta yonma-yon
1 № 2.16 sotix 7 xona+podval 135.000у.е remont 100% bitishi
2 № 1.71 sotix 6 xona+podvak 120.000у.е remont 100% bitishi
qo’shimcha ma’lumot +998955745753
ID: 62909217

Связаться с продавцом

998955745753

на OLX с декабрь 2025 г.

Онлайн вчера в 08:02

xxx xxx xxx

Опубликовано 23 марта 2026 г.

2 qavatli uchastka Yunusobod Hasanbоy, quruvchidan qurilish bosqichidа

135 000 у.е.

Договорная

Пользователь

Местоположение

Location

Ташкент, Юнусабадский район

Ташкентская область

Бесплатное приложение для твоего телефона