Частное лицо
Количество комнат: 6
Общая площадь: 600 м²
Жилая площадь: 400 м²
Расположение: В пригороде
Этажность дома: 2
Высота потолков: 3.30
Меблирован: Нет
Площадь участка: 600
Состояние дома: Авторский проект
Тип дома: Дом
Тип строения: Кирпичный
Вода: Центральное водоснабжение
Электричество: Есть
Отопление: Без отопления
Газ: Магистральный
Санузел: Раздельный
В доме / на участке есть: Интернет, Подвал, кладовка, Гараж
Комиссионные: Нет
Описание
Продаётся 2-х этажный дом стиль «Хайтек» на возвышенности с видом на город, махаллю «Парвоз».
Состояние – Коробка.
Электричество, вода и газ имеются, но в доме проводку не делали. Оставили для нового владельца.
Вход во двор с двух сторон.
Общая площадь земельного участка 600 кв.м.
Площадь занятая домом 280 - 300 кв.м.
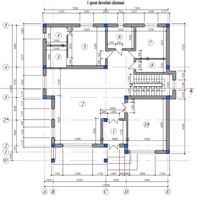
1-й этаж
Общая площадь не менее 200 кв.м.
Высота 3,3 м.
Межкомнатное перекрытие – кирпич.
Зал, кухня, спальня [гардеробная, санузел],
+гостевая,
общий санузел.
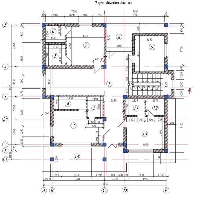
2-й этаж
Общая площадь не менее 200 кв.м.
Высота 3,3 м.
Межкомнатное перекрытие – кирпич.
3 спальни [в каждой гардеробная, санузел],
+ детская игровая комната. Балкон с фасада и сзади.
Крыша – плоская, обитаемая [эксплуатируемая], площадью не менее 250 кв.м.
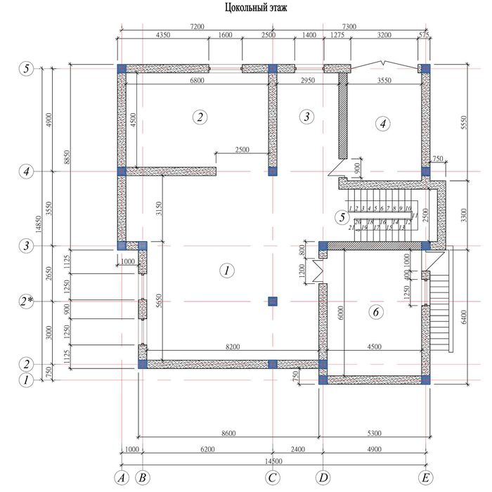
Подвал [цокольный этаж]
Общая площадь не менее 200 кв.м.
Высота 4,5 м.
Фундамент и межкомнатные перегородки – монолит.
Имеется въезд для авто [гараж], размером 3,15 на 5,10
Площадь позволяет организовать спортзал, сауну, малое производство или по усмотрению что-либо другое.
Межэтажное перекрытие – монолит.
Строили для себя.
Расположение дома:
От поста «Уч кахрамон» 3,5 км. [2 км по центральной дороге и 1,5 км в глубь махалли]
ЦЕНА ОКОНЧАТЕЛЬНАЯ
Состояние – Коробка.
Электричество, вода и газ имеются, но в доме проводку не делали. Оставили для нового владельца.
Вход во двор с двух сторон.
Общая площадь земельного участка 600 кв.м.
Площадь занятая домом 280 - 300 кв.м.
1-й этаж
Общая площадь не менее 200 кв.м.
Высота 3,3 м.
Межкомнатное перекрытие – кирпич.
Зал, кухня, спальня [гардеробная, санузел],
+гостевая,
общий санузел.
2-й этаж
Общая площадь не менее 200 кв.м.
Высота 3,3 м.
Межкомнатное перекрытие – кирпич.
3 спальни [в каждой гардеробная, санузел],
+ детская игровая комната. Балкон с фасада и сзади.
Крыша – плоская, обитаемая [эксплуатируемая], площадью не менее 250 кв.м.
Подвал [цокольный этаж]
Общая площадь не менее 200 кв.м.
Высота 4,5 м.
Фундамент и межкомнатные перегородки – монолит.
Имеется въезд для авто [гараж], размером 3,15 на 5,10
Площадь позволяет организовать спортзал, сауну, малое производство или по усмотрению что-либо другое.
Межэтажное перекрытие – монолит.
Строили для себя.
Расположение дома:
От поста «Уч кахрамон» 3,5 км. [2 км по центральной дороге и 1,5 км в глубь махалли]
ЦЕНА ОКОНЧАТЕЛЬНАЯ
ID: 50799556
Связаться с продавцом
xxx xxx xxx
Опубликовано 28 сентября 2025 г.
2-х этажный дом стиль «Хайтек» [состояние - коробка]
150 000 у.е.
Договорная
Местоположение
Ташкент, Юнусабадский район
Ташкентская область