Бизнес
Тип жилья: Вторичный рынок
Количество комнат: 1
Общая площадь: 38
Этаж: 1
Этажность дома: 4
Тип строения: Монолитный
Планировка: Раздельная
Санузел: Раздельный
Меблирована: Нет
Высота потолков: 290
В квартире есть: Кухня, Балкон
Рядом есть: Больница, поликлиника, Школа, Детская площадка, Детский сад, Остановки, Парк, зелёная зона, Развлекательные заведения, Рестораны, кафе, Стоянка, Супермаркет, магазины
Ремонт: Средний
Комиссионные: Нет
Описание
Продаётся
Адрес Мирзо Улугбекский район
Массив ТТЗ-4 около Корзинки
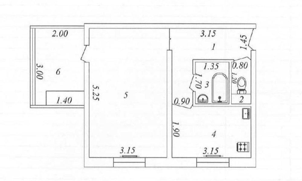
1-комнатная на 1-этаже в 4-х этажном доме улучшенной планировки.
Материал здания керамзито-бетон.
Балкон 2×3. Общая площадь 38м².
Ванная и туалет раздельные.
На кухню отдельный проход с прихожей.
Состояние среднее, можно жить,
Смотрите все фотографии.
Начальная цена 45000$
90 174 67 04
Риэлторов прошу не беспокоить заранее благодарю
Сотилади
Манзил Мирзо Улугбек тумани
Ттз-4 Корзинка оркасида
1-хона 1-каватда 4-каватли домда.
Бинони материали бетонга керамзит кушилган.
Айвон 2х3. Умумий майдони 38м².
Хоммом ва хожатхона алохида.
Ошхона хонадан алохида.
Холати уртача, ящаса булади, хамма расмлани очиб куринг.
Бошлангич нархи 45000$
Маклер безовта килмасин олдиндан рахмат
Адрес Мирзо Улугбекский район
Массив ТТЗ-4 около Корзинки
1-комнатная на 1-этаже в 4-х этажном доме улучшенной планировки.
Материал здания керамзито-бетон.
Балкон 2×3. Общая площадь 38м².
Ванная и туалет раздельные.
На кухню отдельный проход с прихожей.
Состояние среднее, можно жить,
Смотрите все фотографии.
Начальная цена 45000$
90 174 67 04
Риэлторов прошу не беспокоить заранее благодарю
Сотилади
Манзил Мирзо Улугбек тумани
Ттз-4 Корзинка оркасида
1-хона 1-каватда 4-каватли домда.
Бинони материали бетонга керамзит кушилган.
Айвон 2х3. Умумий майдони 38м².
Хоммом ва хожатхона алохида.
Ошхона хонадан алохида.
Холати уртача, ящаса булади, хамма расмлани очиб куринг.
Бошлангич нархи 45000$
Маклер безовта килмасин олдиндан рахмат
ID: 62222974
Связаться с продавцом
xxx xxx xxx
Опубликовано 12 ноября 2025 г.
1/1/4 ТТЗ-4 КОРЗИНКА. БАЛКОН 2Х3. Площадь 38м².
47 000 у.е.
Договорная
Местоположение
Ташкент, Мирзо-Улугбекский район
Ташкентская область